
Design appreciation
设计欣赏
简约,带着一股北欧的时尚气息,刚一看上去或许感觉没有太多的设计修饰,当你慢慢感知后会发觉,其实设计的细节语汇已在不知不觉中融入家居的每个角落,这种不经意间的设计,传递着内敛的生活情节,而生活其中也会很舒适。简约设计、简单生活,正是设计师所追求的设计精髓。
项目地址:无锡玉兰花园
项目风格:现代简约
项目面积:143㎡
项目户型:三室两厅
紫苹果主任设计师:朱大铭
设计店面:紫苹果无锡分公司
案例说明:
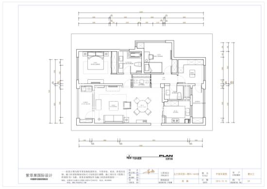
此住宅为为143平米无锡玉兰花园大平层,家里现常住人口3人,需要小孩房,客厅与餐厅是家人日常活动的地方,方便日常家人在一起沟通和交流。本案注重生活品质,考虑到有较多的储物需要,因此巧妙缩小并安排了单独的衣帽间,满足了储物功能同时保留了完整的儿童房空间。根据现有的家具灵活搭配,以木色为主色调,加入了青柠色流行趋势,散发着从容淡雅的生活气息,充满了复古雅致又不乏潮流。
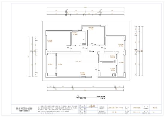
改造前细节:(原始结构图见附图)
优点:采光通风好,南北通透,客餐厅空间大,厨房空间较大。
缺点:主卧储物功能一般,外部储藏空间欠缺,动静区分不明确,需做改动增加空间功能性。

改造后细节:(改造后平面布置图见以下附图)

本案设计效果图:
【客厅】

【餐厅】

【卧室】

公司官网:http://wxzpg.com
Tel:400-8816-360
13年15城
2000+豪华整装团队
30000+大宅别墅客户青睐
超90%的客户把紫苹果推荐给自己亲友
客户满意度全行业最高
预约装修
紫苹果声明:
Copyright 2020 www.wxzpg.com All Rights Reserved. 苏ICP备18037275号-2
苏公网安备32021302002167 上海紫苹果装饰有限公司无锡第一分公司版权所有
紫苹果国际设计-品质赢得口碑