
Design appreciation
设计欣赏
设计师:唐傑
职位: 首席设计师
案例名称:无锡田园东方150平联排别墅
案例面积:150㎡
案例类型:联排别墅
案例户型:别墅
案例风格:美式风格
设计店面:紫苹果无锡分公司
案例说明:
美式风居家,总是给人高雅而随兴的印象。在这个新竹的135坪居宅案例中,设计师在美式风中添入华丽元素,营造出贵族而雅痞的气息,同时在门斗、门框等作出圆弧边角,以相似语汇串联起居家各领域;在这个家,让人不禁想来一场香槟派对,在午后阳光下、美酒豪宅里,与三五好友尽情狂欢!
客户需求:
本案的业主很喜欢复古实木家具的质感,兼顾家的实用性,最终选取了简约美式的设计风格。在本案中随处可见的复古实木家具与花艺墙纸、石纹地砖将简美风发挥的淋漓尽致。设计师以艺术家的情怀将业主带回到18世纪的西方,送给业主一场穿越之旅。
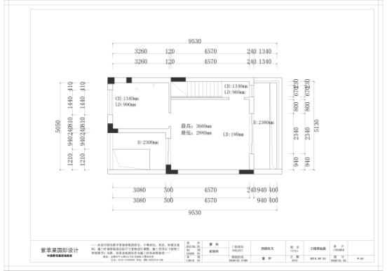
改造前细节:(原始结构图见以下附图)
优点:采光很好,南北通透,具备基本功能空间。
缺点:空间利用率不高,主卧室空间不符合整体配套,户型格局的规划有待完善。
一楼原始结构图:

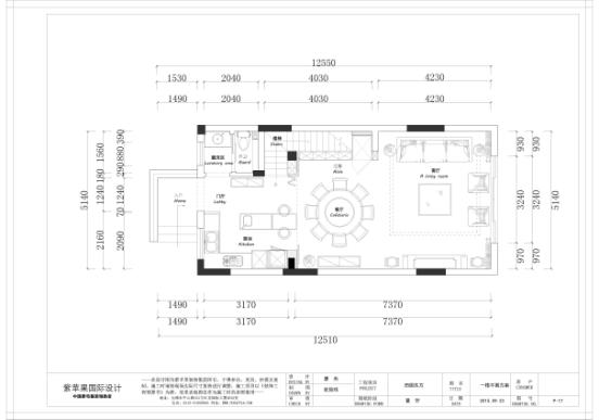
二楼原始结构图:

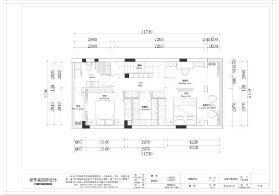
三楼原始结构图:

改造后细节:(改造后平面布置图见附图)
一楼平面布置图:

二楼平面布置:

三楼平面布置:

案例特点:美式
1、空间布局:豪宅府邸的精工制作,散发木质悠远,再如画廊般简洁明快,极简的节奏感直白真诚。温馨的布置,重点考虑功能性和实用舒适,一切的陈设软装象征主人过去生活经历和心中历久弥新的向往。
2、装饰空间:色彩朴素,完美表现业主追求舒适、休闲的生活气息,室内处处摆放着设计师精心搭配陈列品,如家具、灯饰和挂画等各种精致的物件,这些物件和美式的设计在恰当的空间邂逅,让美式设计蕴涵着深深的文化印记,让空间焕发活力。
3、装饰色彩:整个空间色调清新淡雅,灰色系墙面交替使用,在灯光的映衬下错落有致可又互相呼应。看似漫不经心的软装细节点缀,枣红色、橄榄绿等跳出灰色系色调但又和谐于整个画面。一盏烛台、一幅挂画、一捧花束都为家里带来了一丝温馨与浪漫。
本案设计效果图:
【客厅】

【餐厅】

【主卧室】

【男孩房间】

公司官网:http://wxzpg.com
Tel:400-8816-360
13年15城
2000+豪华整装团队
30000+大宅别墅客户青睐
超90%的客户把紫苹果推荐给自己亲友
客户满意度全行业最高
预约装修
紫苹果声明:
Copyright 2020 www.wxzpg.com All Rights Reserved. 苏ICP备18037275号-2
苏公网安备32021302002167 上海紫苹果装饰有限公司无锡第一分公司版权所有
紫苹果国际设计-品质赢得口碑