
Design appreciation
设计欣赏
设计师:姚学浪
职位: 首席设计师
案例名称:无锡美式乡村150平米别墅
案例面积:150㎡
案例类型:别墅
案例风格:美式乡村风格
设计店面:紫苹果无锡分公司
案例说明:
美国是一个崇尚自由的国家,这也造就了其自在、随意的不羁生活方式,没有太多造作的修饰与约束,不经意中也成就了另外一种休闲式的浪漫,而美国的文化又是一个移植文化为主导的脉络,它有着欧罗巴的奢侈与贵气,但又结合了美洲大陆这块水土的不羁,这样结合的结果是剔除了许多羁绊,但又能找寻文化根基的新的怀旧、贵气加大气而又不失自在与随意的风格,美式乡村的自然气息通过运用将这种气息完美的呈现出来了。
客户的需求:注重比较细致的功能区域(独立多功能室、衣帽间、休闲区等),且在满足功能的前提下,希望在保留整个空间区域的情况下做适当的修改,使得整体布局更趋合理化;
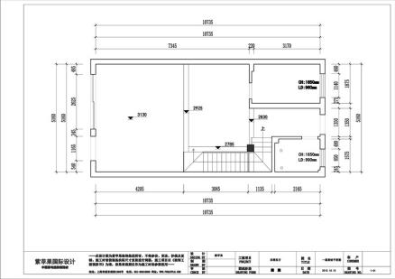
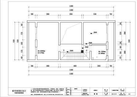
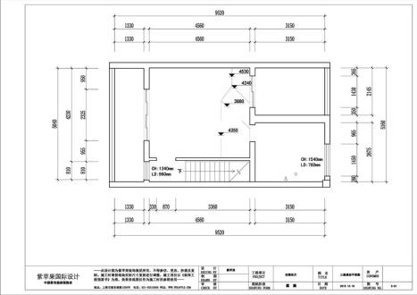
改造前细节:(原始结构图见以下附图)
优点:采光很好,南北通透,具备基本功能空间。
缺点:客餐厅比重不合理,缺乏储藏空间,户型格局的规划有待完善。
一楼原始结构图:

二楼原始结构图:

三楼原始结构图:

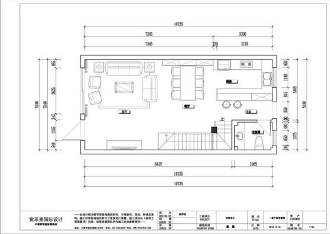
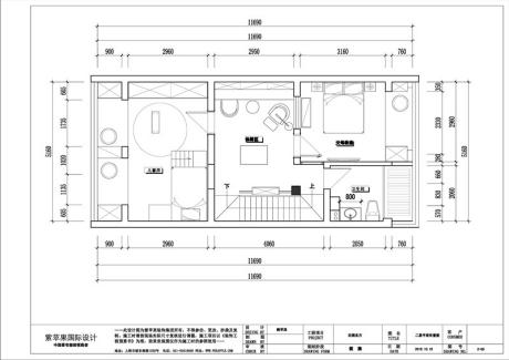
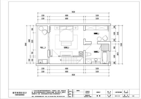
改造后细节:(改造后平面布置图见附图)
一楼平面布置图:

二楼平面布置图:

三楼平面规划图:

案例特点:美式乡村风格
1、美式乡村风格的家具通常简洁爽朗,线条简单、体积粗犷,其选材也十分广泛:实木、印花布、手工纺织的尼料、麻织物以及自然裁切的石材……风格突出格调清婉惬意,外观雅致休闲,色彩多以淡雅的板岩色和古董白居多,随意涂鸦的花卉图案为主流特色,线条随意但注重干净干练。
2、美式乡村风格的家具在设计和材料上并没有严格的区分定义。它所讲求的是一种切身体验,是人们从家具上所感受到的那份日出而作、日落而息的宁静与闲适。每一件家具都透着阳光、青草、露珠的自然味道,仿佛信手拈来,毫不矫情。
3、美式乡村风格摒弃了繁琐和奢华,并将不同风格中的优秀元素汇集融合,以舒适机能为导向,强调“回归自然”,使这种风格变得更加轻松、舒适。美式乡村风格突出了生活的舒适和自由,不论是感觉笨重的家具,还是带有岁月沧桑的配饰,都在告诉人们这一点。特别是在墙面色彩选择上,自然、怀旧、散发着浓郁泥土芬芳的色彩是美式乡村风格的典型特征。美式乡村风格的色彩以自然色调为主,绿色、土褐色最为常见;壁纸多为纯纸浆质地;家具颜色多仿旧漆,式样厚重。
本案设计效果图:
【餐厅看客厅】

【主卧室】

【儿童卧室】

公司官网:http://wxzpg.com
Tel:400-8816-360
13年15城
2000+豪华整装团队
30000+大宅别墅客户青睐
超90%的客户把紫苹果推荐给自己亲友
客户满意度全行业最高
预约装修
紫苹果声明:
Copyright 2020 www.wxzpg.com All Rights Reserved. 苏ICP备18037275号-2
苏公网安备32021302002167 上海紫苹果装饰有限公司无锡第一分公司版权所有
紫苹果国际设计-品质赢得口碑