欢迎您来到无锡紫苹果装饰-专业别墅装饰公司,21年专注别墅装修、高端室内装修设计!
别墅装修 新闻中心 设计资讯 276平【龙湖艳澜香颂】户型解析 企业简介 企业印象 发展历程 新闻中心 社会责任 诚聘英才
免费报价

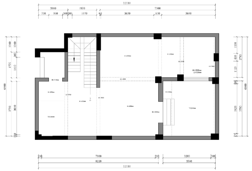
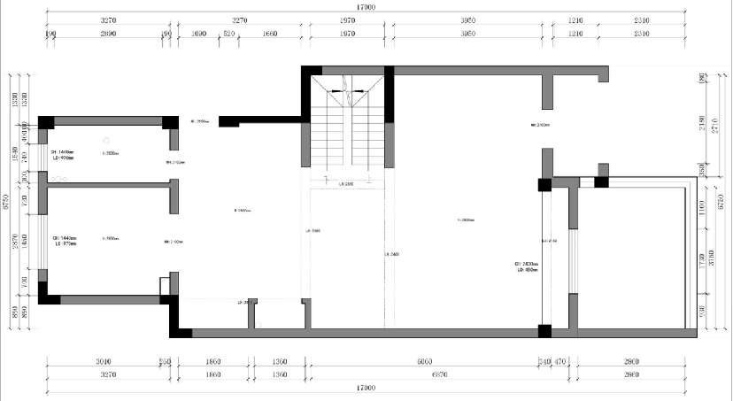
276平【龙湖艳澜香颂】户型解析

发表:2023/08/25 15:08:55  作者:装修小能手  浏览:1005

能有多震撼!
将整面的墙和书柜融为一体
项目地点| Project location龙湖艳澜香颂
设计风格| Design Style:复古美式风格
面       积 | Square Meter :276㎡
设  计  师|无锡紫苹果别墅装修sun
能有多震撼!
将整面的墙和书柜融为一体
项目地点| Project location龙湖艳澜香颂

设计风格| Design Style:复古美式风格
面 积 | Square Meter :276㎡
设 计 师|无锡紫苹果别墅装修sun

上一条:无锡【新力朗诗熙华府】350平 下一条: 无锡装修【季景铭邸】150平中

免费报价 装修预约

17年专注居家生活品质
30000+别墅大宅设计施工作品
90%+的客户把紫苹果推荐给自己亲友

紫苹果官网:zpg.com.cn

咨询电话:400-0505-907

无锡别墅装修

扫一扫手机浏览

无锡别墅装修

扫一扫关注我们

紫苹果声明:

“紫苹果”是经过商标局注册认证,属于紫苹果装饰集团独有品牌。紫苹果装饰目前只在上海、无锡、合肥、成都、南宁、贵阳、昆明、曲靖、大理等城市开设分公司; 其余地区相似紫苹果公司不属于紫苹果装饰集团。咨询热线:400-0505-907

紫苹果的优势:连续多年入选装修公司排名前十强、20年别墅家装经验,大品牌有保障,致力为精英人士和高端客户提供无锡别墅装修、装修设计、软装设计等私属定制服务。

Copyright 2020 www.wxzpg.com All Rights Reserved. 苏ICP备18037275号-2 苏公网安苏公网安备32021302002167 上海紫苹果装饰有限公司无锡第一分公司版权所有

紫苹果国际设计-品质赢得口碑

  • 网警110
  • 网络社会征信网
  • 可信网站
  • 诚信网站

×

提交成功
感谢您关注紫苹果,我们将会在一个工作日内与您联系!
我知道了