【设计信息】️
️项目地点| Project location无锡宸风云庐
设计风格| Design Style:待定

面 积 | Square Meter :250㎡
设 计 师|无锡紫苹果别墅装修
----------------------------------------------------
1⃣一层通过敲砌墙调整了空间的完整性。入户做了
一个比较大的入户衣帽间,中厨设计了开放式和闭式两种方案,搭配西厨岛台使用,增加了餐厨空间。在这稿方案中,对一楼公卫进行了保留,朝南设置一
个房间,以满足居住需要。
2⃣二层个保留了三个房间。主卧室一个大套房,满足主人的洗浴、衣帽间等需求。北面儿童房较小采用了榻榻米的方式,同时增加了储物空间。
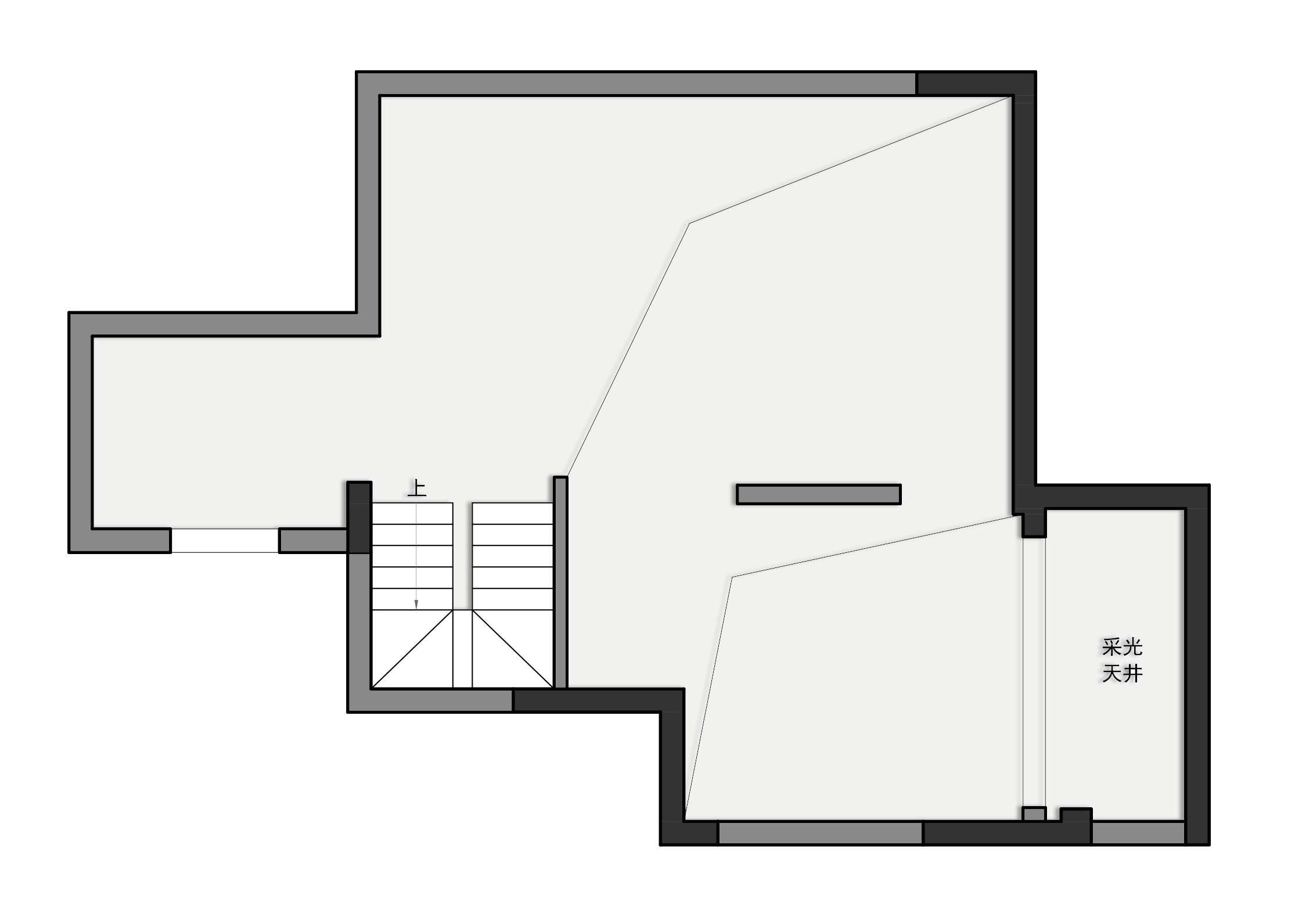
3⃣负一层保留了大挑空,结合少量现浇,把空间变得更方正,利用率更高。将北面采光井也纳入室内规划范围,难处理的Z字形承重柱用柜子做装饰,满足了储物需求,空间也更加美观。这个空间主要作为多功能的书房和储物间来使用,满足客户工作、
阅读、储物等需求。
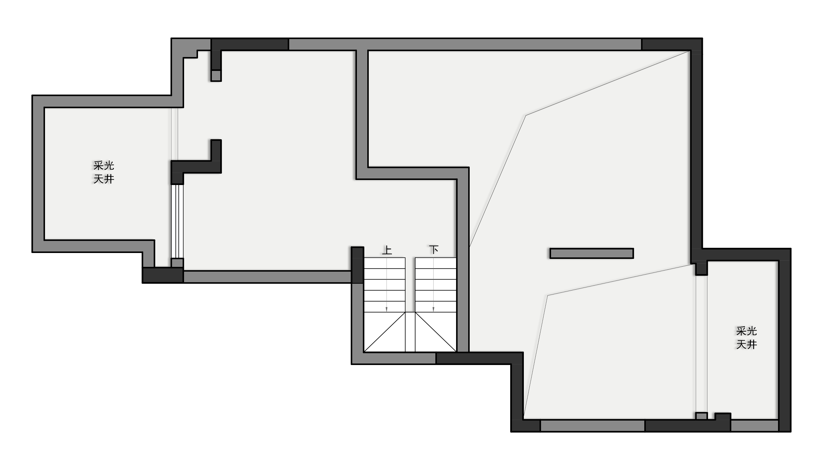
4⃣负二层在入户处做了进门鞋帽柜,方便入户收纳。功能上负二层空间作为一个休闲会客区域来使用,巧妙利用原来的墙体微调之后做为电视墙,楼梯下方设计微景观与茶室结合,让空间更加美观。在北面规划洗手间和茶水台,很大限度满足了会客的需求。
宸风云庐户型方案持续更新中,记得查看
最新文章
紫苹果声明:
Copyright 2020 www.wxzpg.com All Rights Reserved. 苏ICP备18037275号-2
苏公网安备32021302002167 上海紫苹果装饰有限公司无锡第一分公司版权所有
紫苹果国际设计-品质赢得口碑