自从有了这样的家,再也没羡慕过别人!熙华府
业主是通过小红书案例咨询我们的
女业主很漂亮,是位时尚辣妈,儿子在上小学,老公是企业家,目前想在无锡发展居住,喜欢法式风格。
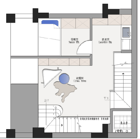
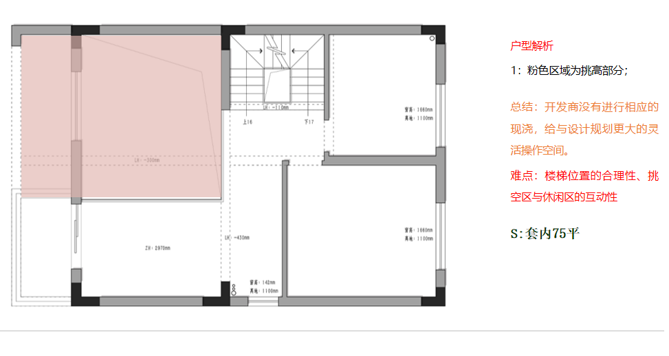
地下室主要是解决采光和楼梯的问题
一楼女主人要保留挑高区域,不打算现浇,一楼设置了一个法式旋转楼梯,
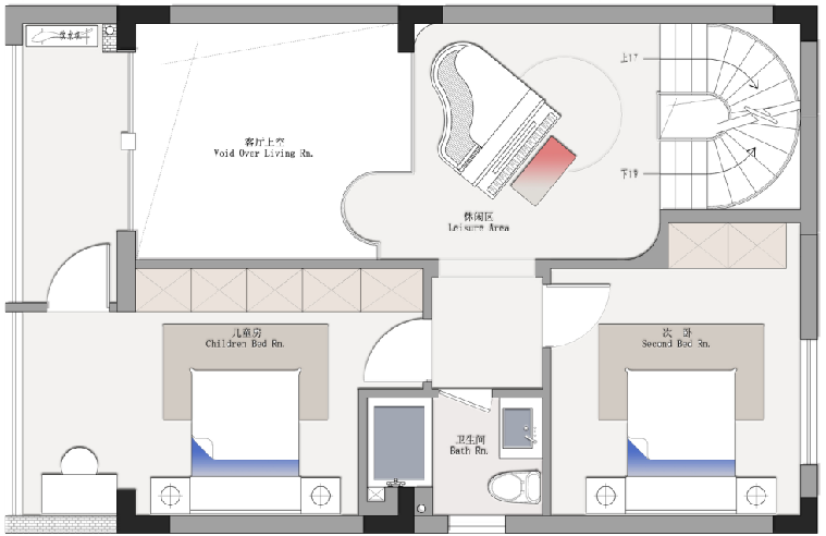
二楼设置了两个房间,其中一个儿童房,在楼梯口上来的公共区域放置了小孩的三角钢琴,上楼仪式感十足,旁边一个挑空区域很浪漫优雅,专为女主人打造。
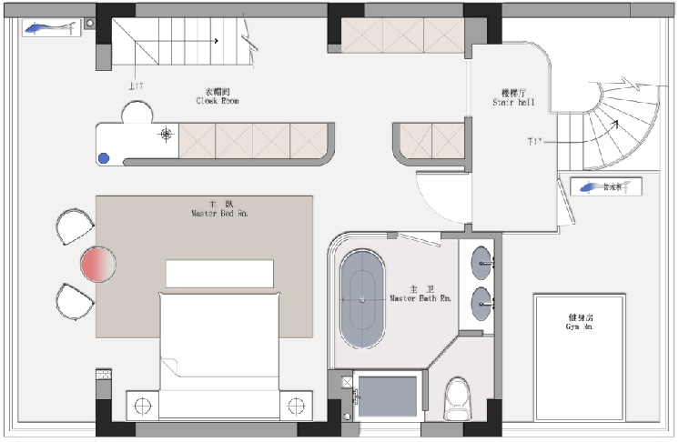
三楼整体做的一个主卧大套房,外面公共区是一个男主人的健身区域,后面的楼梯上去阁楼设置了一个亲子娱乐区,整体品质非常高!
#别墅设计#宸风云庐#装修案例#日常生活里的快乐瞬间#装修日常#空间设计#装修公司怎么选#无锡#户型优化#无锡口碑好的装修公司#无锡靠谱的装修公司
#浪







漫生活的记录者#熙华府
最新文章
紫苹果声明:
Copyright 2020 www.wxzpg.com All Rights Reserved. 苏ICP备18037275号-2
苏公网安备32021302002167 上海紫苹果装饰有限公司无锡第一分公司版权所有
紫苹果国际设计-品质赢得口碑