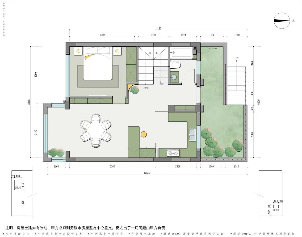
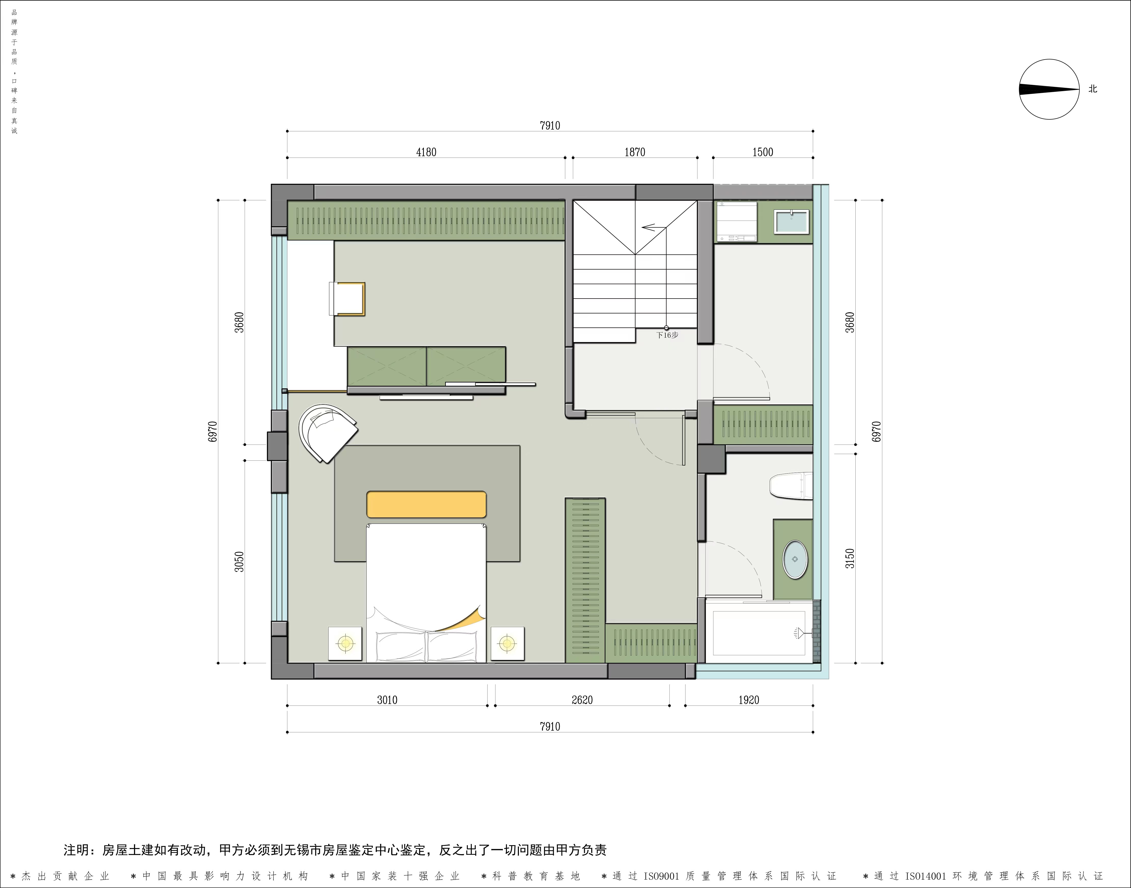
蠡湖天著这套户型的一楼比较有意思
院子是下沉式的,所以有个问题就是排水难以解决
我们设计师一楼规划了两个方案
一层的中间做了采光井,正好可以借给地下室的,但是两个采光井的位置不相同如上图,不用担心日常的排水问题
一楼没有规划房间,二三楼是主要的起居室,品质还是很高的
#设计 #户型优化 #独立设计师 #设计师 #装修设计 #浪漫生活的记录者 #龙湖蠡湖天著 #地下室 #装修设计 #空间设计 #一楼带花园 #装修 #装修日记 #别墅设计 #无锡靠谱的装修公司 #紫苹果国际设计无锡第一分公司 
















最新文章
紫苹果声明:
Copyright 2020 www.wxzpg.com All Rights Reserved. 苏ICP备18037275号-2
苏公网安备32021302002167 上海紫苹果装饰有限公司无锡第一分公司版权所有
紫苹果国际设计-品质赢得口碑