欢迎您来到无锡紫苹果装饰-专业别墅装饰公司,21年专注别墅装修、高端室内装修设计!
别墅装修 新闻中心 设计资讯 无锡260平【远洋湖墅】上叠,案例赏析 企业简介 企业印象 发展历程 新闻中心 社会责任 诚聘英才
免费报价

无锡260平【远洋湖墅】上叠,案例赏析

发表:2023/08/13 11:08:02  作者:装修小能手  浏览:1129

远洋湖墅

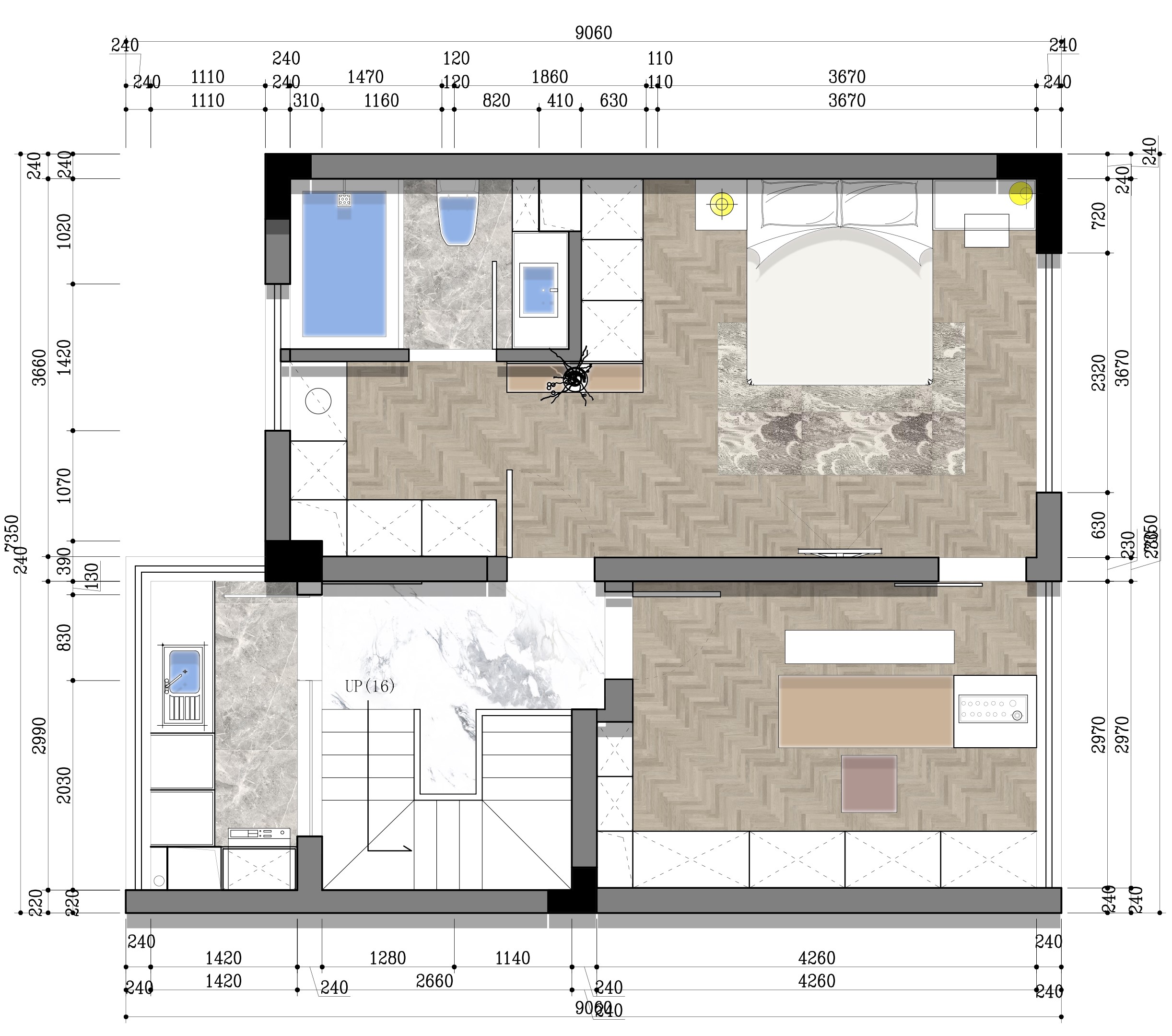
户型不好,设计来凑!!参考价值 100%

远洋湖墅
二楼还不确定到底能不能外扩,开发商和业主正在商量,别墅装修,所以我们保守起见,装修设计

能扩的和不能外扩的方案都做了!

无锡装修


两套方案一楼品质感都挺高的,不保留房间,厨房卫生问客餐厅,来加长岛台,试问不是那哪个人心中的梦中情房!


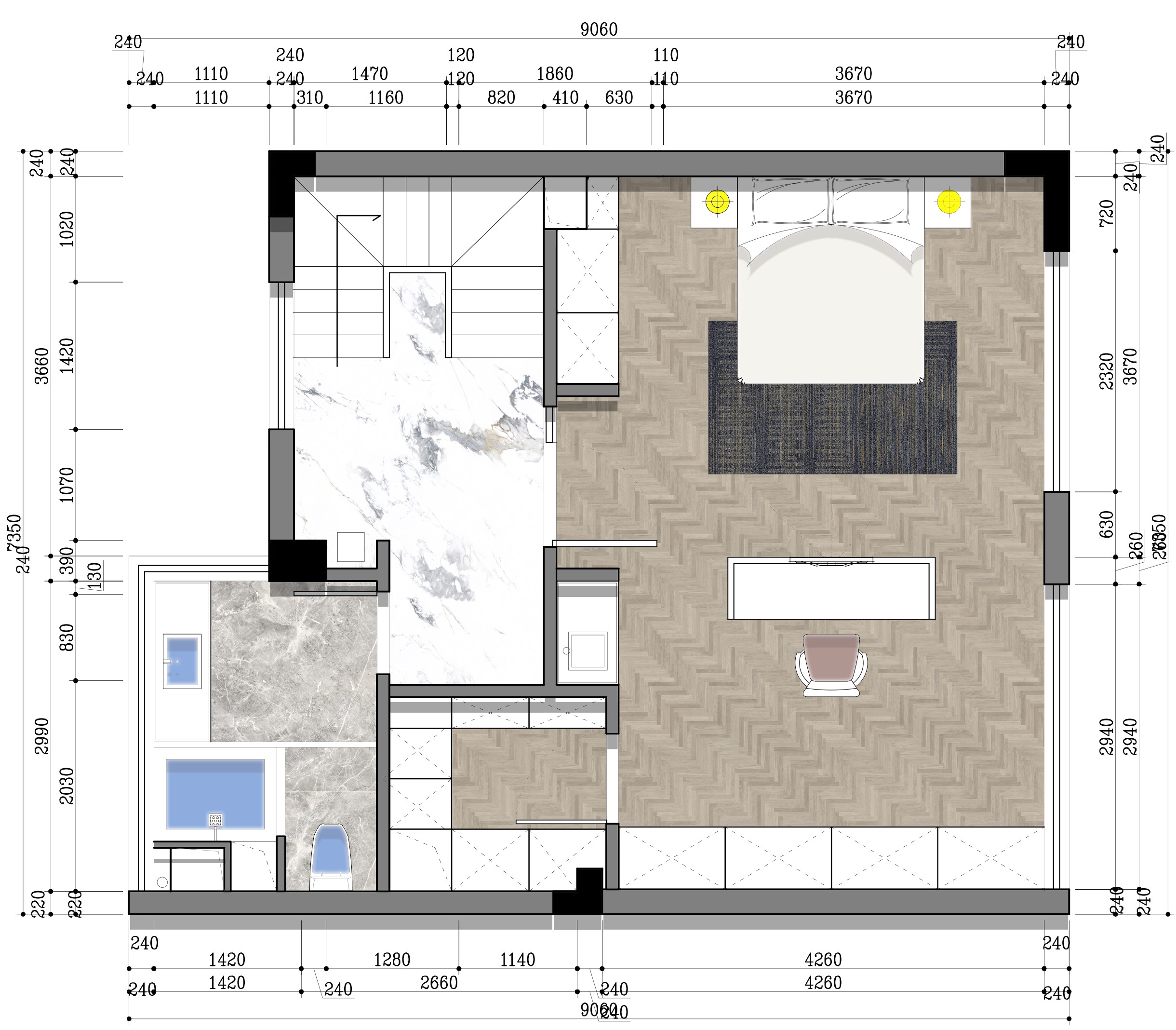
二楼如果不能外拓的话此户型比较鸡肋,若果外拓之后,品质提升,朝南主卧大套房,独立衣帽间。
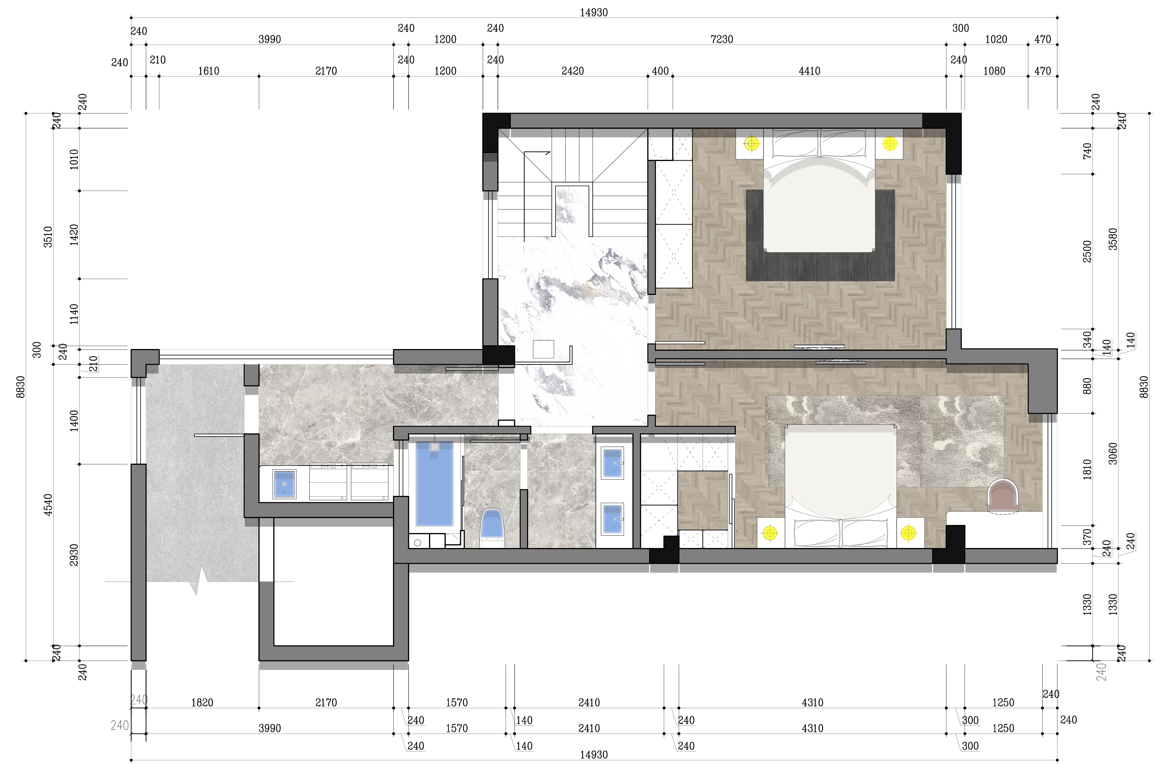
三楼我们现浇之后做了一个大主卧,外面做了个书房,方便办公使用!

上一条:无锡【小团月庐】260㎡上叠户 下一条: 300平【龙湖蠡湖天著】下叠,

免费报价 装修预约

17年专注居家生活品质
30000+别墅大宅设计施工作品
90%+的客户把紫苹果推荐给自己亲友

紫苹果官网:zpg.com.cn

咨询电话:400-0505-907

无锡别墅装修

扫一扫手机浏览

无锡别墅装修

扫一扫关注我们

紫苹果声明:

“紫苹果”是经过商标局注册认证,属于紫苹果装饰集团独有品牌。紫苹果装饰目前只在上海、无锡、合肥、成都、南宁、贵阳、昆明、曲靖、大理等城市开设分公司; 其余地区相似紫苹果公司不属于紫苹果装饰集团。咨询热线:400-0505-907

紫苹果的优势:连续多年入选装修公司排名前十强、20年别墅家装经验,大品牌有保障,致力为精英人士和高端客户提供无锡别墅装修、装修设计、软装设计等私属定制服务。

Copyright 2020 www.wxzpg.com All Rights Reserved. 苏ICP备18037275号-2 苏公网安苏公网安备32021302002167 上海紫苹果装饰有限公司无锡第一分公司版权所有

紫苹果国际设计-品质赢得口碑

  • 网警110
  • 网络社会征信网
  • 可信网站
  • 诚信网站

×

提交成功
感谢您关注紫苹果,我们将会在一个工作日内与您联系!
我知道了