项 目 介 绍

楼盘:陆缘茗邸
面积:125平
户型:三室二厅二卫一厨
风格:现代风格
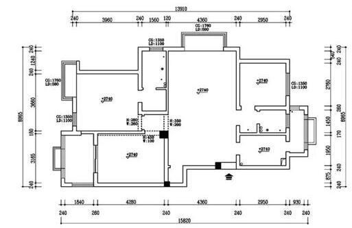
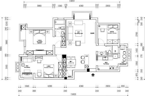
平 面 图 展 示
原始结构图
平面布置图
效 果 图 展 示
餐厅
本方案是围绕现代简约为主题,适合于30岁左右的三口之家居住,以简洁明快的设计风格为主调,简洁和实用是现代简约风格的基本特点。
客厅
简约风格不仅注重居室的实用性,而且还体现出了现代社会生活的精致与个性,符合现代人的生活品位。
卧室
在总体布局上方面尽量满足业主生活的需求,主要装修材料以胡桃木,壁纸为主,以胡桃木的优美含蓄,壁纸的朴素大方来装饰墙面的景点。更体现现代简约的之感。创造一个温馨,健康的家庭环境。

主任设计师:潘镜先
工作年限:10年
资历荣誉
中国室内装饰协会
2008年度 优秀设计师奖
2010年度 软装设计优秀奖
2013年度 集团回头客年度奖
设计理念
设计没有终极,只有不断的变革
预约装修
紫苹果声明:
Copyright 2020 www.wxzpg.com All Rights Reserved. 苏ICP备18037275号-2
苏公网安备32021302002167 上海紫苹果装饰有限公司无锡第一分公司版权所有
紫苹果国际设计-品质赢得口碑