项 目 介 绍

楼盘名称:鸿墅
面积:300㎡
风格:新中式
户型:复式
平 面 图 展 示
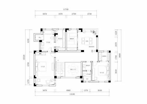
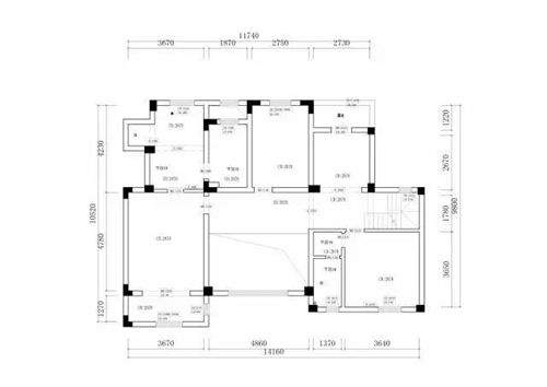
一层原始结构图
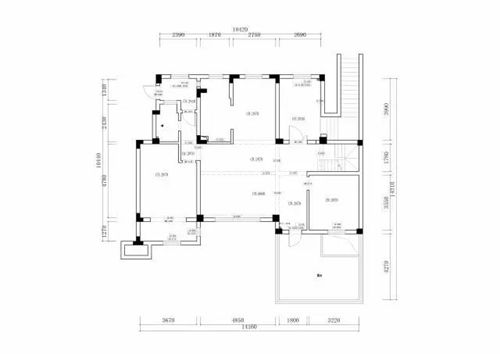
二层原始结构图
一层平面布置图
二层平面布置图
效 果 图 展 示
客餐厅
新中式风格不是纯粹的元素堆砌,而是通过对传统文化的认识,将现代元素和传统元素结合在一起。
客厅
以现代人的审美需求来打造富有传统韵味的事物,让传统艺术在当今社会得到合适的体现。
茶室
提取传统中式风格中的精华,再融入现代人的审美加入新意而形成的。
主室
不仅更加符合现代人的审美,而且也有中式风格的特色,深受现代业主的喜爱。

首席设计师:蒋晓娇
工作年限:12年
设计理念
设计创意来源于生活,享受生活,设计可以改变一切
擅长风格
中式、新中式、现代简约、欧式新古典、美式、法式 等等
资历荣誉
2007年银城地产一等奖
2008年旭日杯优秀奖
2009年无锡百万设计大赛骑士奖
2010年华中师范大学出版社居住空间设计与施工副主编
2014年筑巢设计入围设计
2017年清华大学高级软装陈设设计硕士研修班
案例作品
印象剑桥,鸿墅,栖霞栖园,吉祥花园,西水东,万科信城道,
金丰观湖博亭,田园东方,玉兰花园,清杨康城,古韵坊等金丰观湖铂庭
预约装修
紫苹果声明:
Copyright 2020 www.wxzpg.com All Rights Reserved. 苏ICP备18037275号-2
苏公网安备32021302002167 上海紫苹果装饰有限公司无锡第一分公司版权所有
紫苹果国际设计-品质赢得口碑