设计师:唐杰
职位:高级主任设计师
设计理念:舒适、简约、个性、精致。
房型:平层
面积:183㎡
家庭背景:三口之家
设计风格:新中式
案例说明:天地万物皆与人同根一体,由之衍化出的俭朴、单纯、自然等理念。任何地位、任何年龄、任何文化的所有人都可以无限求禅,修禅。“禅是外不着相,定是内不动心”,修禅可以提高人的生命境界,修禅就能定,定就能生慧,但我认为修禅最大的好处在于享受生活,因为“禅”能让人内心平静,止息痛苦,从而达到永恒的快乐,所以每个人都希望生活在禅意中,所以就有了“禅居”。
我们的需求:禅居,是静谧而又厚重的自然之居,讲求宁静致远、质朴和谐的生活境界和态度。它更偏重于讲究一种意境,超然脱俗。
改造前细节:(原始结构图见附图)
优点:采光很好,南北通透,具备基本功能空间。
缺点:空间利用率不高,主卧室空间不符合整体配套,户型格局的规划有待完善。
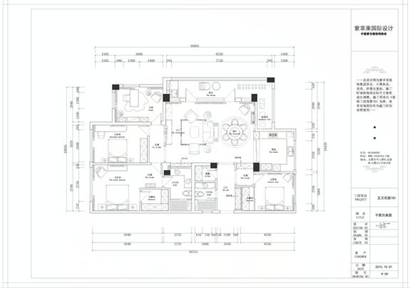
改造后细节:(改造后平面布置图见附图)
案例特点:新中式
1、空间布局:庭院芳草茵茵、树木繁茂、流水潺潺,而屋内则优雅极致、舒适静谧,满足了现代生活在都市中的文人雅客“隐于园”的美好愿望。
2、装饰空间:清新淡雅的中式风,与禅意完美的结合在一起,更加贴合生活、品味生活,符合现代人的生活方式。
3、装饰色彩:新中式风格的家具多以深色为主,墙面色彩搭配。
4、配饰家具:新中式风格的家具可为古典家具,或现代家具与古典家具相结合。中国古典家具以明清家具为代表,在新中式风格家具配饰上多以线条简练的明式家具为主。
原始图:

平面布置图:


客厅
客厅采光非常好,且南北通透让整个空间更加肆意宽敞。

餐厅
雅致沉重的餐厅,是业主一直想表达的感觉,设计师做到了业主之所想。

卧室
卧室主人希望简洁。雅致不需要过多装饰的温馨休息空间。设计师提取温馨、舒适、雅致的元素,给业主一个完整的答卷。
公司官网:http://wxzpg.com
Tel:400-8816-360
13年15城
2000+豪华整装团队
30000+大宅别墅客户青睐
超90%的客户把紫苹果推荐给自己亲友
客户满意度全行业最高
最新文章
紫苹果声明:
Copyright 2020 www.wxzpg.com All Rights Reserved. 苏ICP备18037275号-2
苏公网安备32021302002167 上海紫苹果装饰有限公司无锡第一分公司版权所有
紫苹果国际设计-品质赢得口碑