【设计信息】️
️项目地点| Project location无锡太湖如院
设计风格| Design Style:待定
面 积 | Square Meter :261㎡
设 计 师|无锡紫苹果别墅装修蔡老师
------------------------------------------------
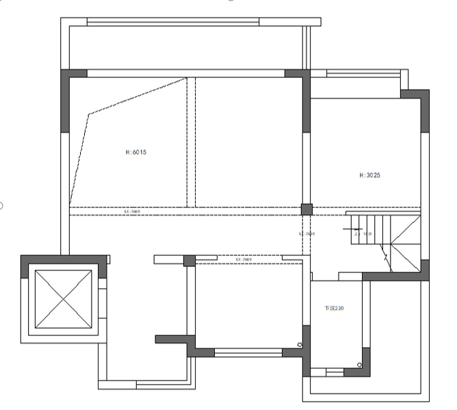
此户型原始结构比较方正,这个客户的一楼没有大动,保留了原始,阳台打通做了休闲晾晒区域,u型中厨设计,空间足够大,可以进行美食烹饪,老人房也设计在了一楼
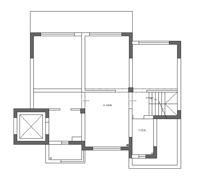
二楼我们设计了两个卧室,东南面是一个主人的大套房,双台盆卫浴都齐全,还有设计一个大浴缸,外面的区域大多做了休闲娱乐,应主人的要求安排了书房,南面另一个次卧可以做客房或者儿童房。
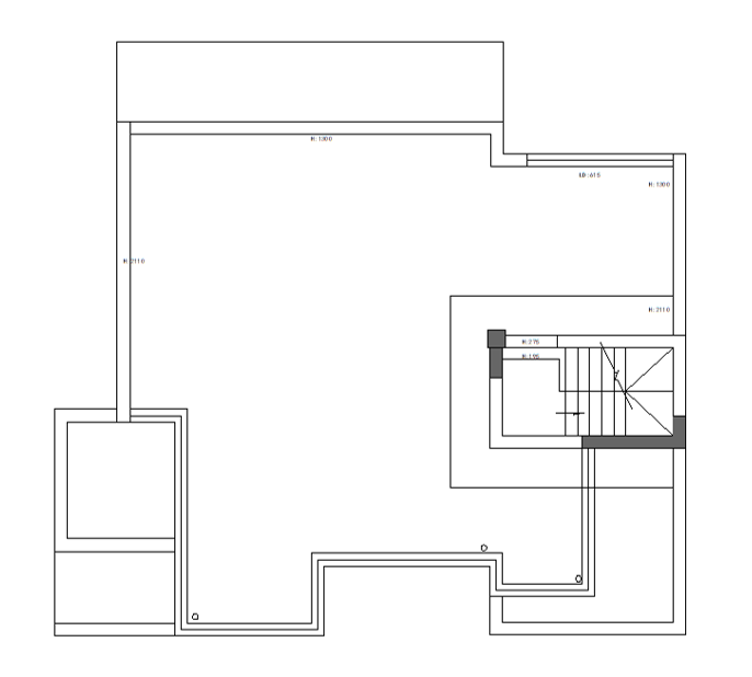
露台就设置了休闲区,和生活晾晒,闲暇之余喝喝茶和朋友讨论很是惬意!






最新文章
紫苹果声明:
Copyright 2020 www.wxzpg.com All Rights Reserved. 苏ICP备18037275号-2
苏公网安备32021302002167 上海紫苹果装饰有限公司无锡第一分公司版权所有
紫苹果国际设计-品质赢得口碑