【设计信息】️
️项目地点| Project location:鸿墅.公元悦府
设计风格| Design Style:现代
面 积 | Square Meter :370㎡













设计之后的每个空间都变得更加合理舒服。
功能介绍
地下室: 修改了楼梯的位置,利用楼梯旁边的位置做了一个客卫,其他区域分为了会客区休闲影视。
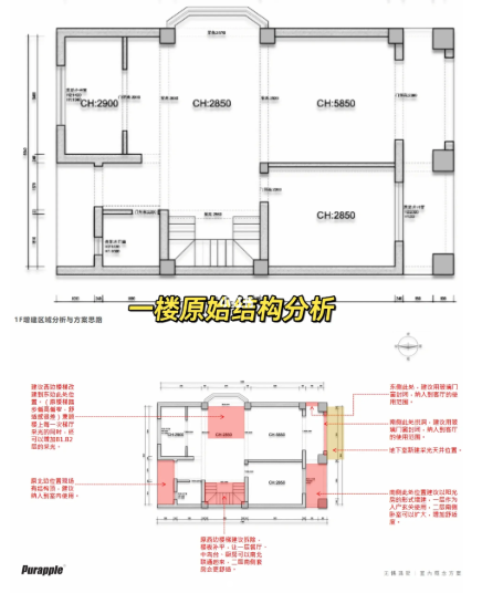
1F:入户做了一个具有仪式感的门厅,朝南做了一个下沉式客厅,楼梯改成了U型楼梯,外拓扩大了原来的厨房面积分为中西结合的厨房,
2F:现浇原来调控的位置做成一个起居室,南面是一个主卧大套房,北面是父母的套房
3F: 是给小孩准备的两个大套房
4F: 整个一层都是小孩房,露台搭建成了阳光房。
原创不易,喜欢本案例的家人们记得❤️
#装修设计#设计#设计师#户型优化#浪漫生活的记录者#鸿墅#独立设计师#帝泊湾小区#装修案例#紫苹果国际设计无锡第一分公司#别墅设计#空间设计#无锡靠谱的装修公司#宸风云庐#无锡别墅#新力帝泊湾#硬装局改




最新文章
紫苹果声明:
Copyright 2020 www.wxzpg.com All Rights Reserved. 苏ICP备18037275号-2
苏公网安备32021302002167 上海紫苹果装饰有限公司无锡第一分公司版权所有
紫苹果国际设计-品质赢得口碑