【设计信息】️
️项目地点| Project location:新力帝泊湾
设计风格| Design Style:现代
面 积 | Square Meter :450㎡













功能介绍

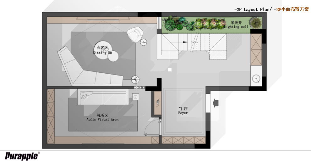
-2F:会客区,门厅,视听区,水吧【68.2㎡】



-1F:茶室,卫生间,储藏室【61.5㎡】



1F:客厅,餐厅,门厅,厨房,卫生间【97㎡】

2F: 卧室套房,卧室,起居室,卫生间,书房【88.5㎡】
3F: 卧室,门厅,书房,卫生间,阳台【75.3㎡】
4F:卧室,衣帽间,卫生间,设备间【71.5㎡】
5F: 阳光房
原创不易,喜欢本案例的家人们记得❤️
#装修设计#设计#独立设计师#设计师#户型优化#硬装局改#浪漫生活的记录者#别墅设计#宸风云庐#装修案例#空间设计#新力帝泊湾#帝泊湾小区#无锡别墅#无锡靠谱的装修公司#紫苹果国际设计无锡第一分公司
最新文章
紫苹果声明:
Copyright 2020 www.wxzpg.com All Rights Reserved. 苏ICP备18037275号-2
苏公网安备32021302002167 上海紫苹果装饰有限公司无锡第一分公司版权所有
紫苹果国际设计-品质赢得口碑