
黑色时尚是神秘的,是工业风的自由豁达,想把两个结合在一起,非常舒适。黑色墙壁的天花板、薄原木地板、明装的黑线管、纤细的黑色金属楼梯和家具,粗犷中带有质感。
餐 厅



▲一张桌子,六张椅子,一棵小树,餐厅很简单。
厨 房


▲厨房采用了全黑的设计,用暖色的光带,在炫酷中带来温暖。
客 厅


卫 生 间

▲黑色的厕所,红色的照明,充满热情。
卧 室


▲主卧和主卫被安放在两个并排的方形箱子里。睡眠区是黑色的开放式包厢,内侧和外侧装饰着光带,床后面制作了两个轨道的墙壁灯,简单又酷炫。
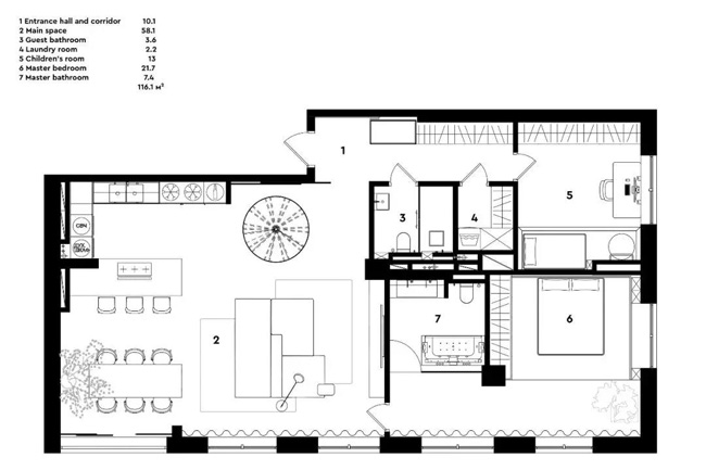
设 计 图

上一篇:【优秀设计作品】无锡中式风格装修案例,雅•枯木逢春的味道
最新文章
紫苹果声明:
Copyright 2020 www.wxzpg.com All Rights Reserved. 苏ICP备18037275号-2
苏公网安备32021302002167 上海紫苹果装饰有限公司无锡第一分公司版权所有
紫苹果国际设计-品质赢得口碑