无锡紫苹果装饰
从极简开始的家
无锡·蠡湖香樟园 208㎡极简
施工单位:紫苹果工匠团队
设计主创:紫苹果国际设计 田昊霖
Minimal & Elegant
摒除嘈杂的尘务,由衷盼望家就是最温暖的港湾,简单、安静、品质的生活,只想在滚滚红尘中拥抱单纯的小确幸,度过每个甜蜜温馨的晨昏。
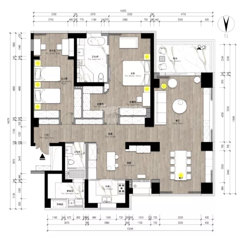
户型图

户型图解析:
外框结构方正的原始户型,墙体结构上出现了空间利用不足和拥挤的劣势,因此设计师在结构上做了改动:
改变狭长走道空间,增加空间的伸缩感。将多功能区开门做大,引入光线至走道。结合立面造型材质处理。餐厅设计加长餐桌,空间做减法设计,意图创造一个干净,纯粹的室内环境。
客厅电视背景墙考虑通透性,在不影响光线的前提下,增加储物空间。
将暗内卫改为衣帽间,一部分给女儿房用,一部分分给主卧。收纳空间增加一倍,
原设计在走道的吧台区,设计在餐厅区,景观,便利度会更好。
1
LIVING ROOM

///
本案业主对生活品质有着极高的要求,带着对美好的新生活的期盼。摒除嘈杂的尘务,由衷盼望家就是最舒服的港湾。朝南的美景与温煦留给客厅、主卧室与小孩房,感受四时流转间的风光绮丽,无形引进自然能量调剂身心,天人相应间无为而生;朝北的空灵留给开放式厨房、餐厅,视野大阔之余胸怀随之开敞,静候心灵的归零与重启。
以灰白色阶打底的客餐厅,跟空间色彩一样,简单到不愿多说一句,入眼的就是大面的白墙、整面铺排的饰面板,就这样以简洁明快的形塑,带来一种触及肌理的性感,让你沉溺其中而不自知。
2
AISLE SPACE

///
公共空间的无缝接合演绎大器的通透美学,将追究极简的生活态度进行到底。当周末 清晨,我们坐在落地窗前,远眺湖光山色,耳边是空旷处传来的鸟鸣声,什么都不去想,就让自己静静地坐着,没有一丝吵杂,完全浸进在自己的世界中,享受精神的一丝放空。
3
BEDROOM

///
四面灰白调一览无余的空间,顶部却是静谧简单的吊顶,分布的射灯像是前行的航灯,夜晚畅游在这样的宁静里,感受着丝绒包裹身体,第二天的晨光应该也很难叫醒吧。
4
BEDROOM2
儿童卧室,选择了与主卧相似的极简白色吊顶,灰色的床头柜造型,也是质感十足,极简童趣的床头挂饰和可爱的床头灯瞬间提升空间的灵动性。

【本文标题和网址】「蠡湖香樟园」208㎡极简装修案例,追究极简的生活态度:
最新文章
紫苹果声明:
Copyright 2020 www.wxzpg.com All Rights Reserved. 苏ICP备18037275号-2
苏公网安备32021302002167 上海紫苹果装饰有限公司无锡第一分公司版权所有
紫苹果国际设计-品质赢得口碑