欢迎您来到无锡紫苹果装饰-专业别墅装饰公司,21年专注别墅装修、高端室内装修设计!
别墅装修 新闻中心 设计资讯 新中式装修效果图 企业简介 企业印象 发展历程 新闻中心 社会责任 诚聘英才
免费报价

新中式装修效果图

发表:2017/04/04 15:04:01  作者:装修小能手  浏览:2129

  设计师:朱大铭

  所属公司:无锡紫苹果装饰

  职 位:主任设计师

  设计理念:紫砂、茶、围棋、文化、艺术

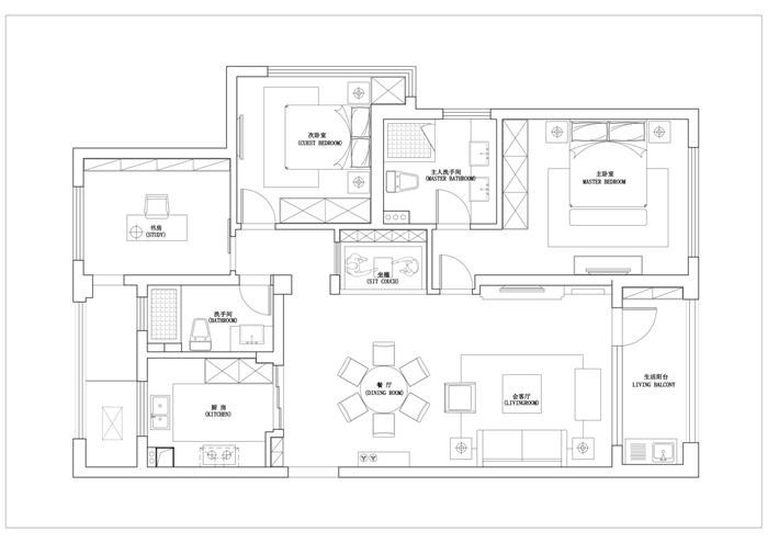
  房 型:三室两厅

  面 积:143平米

  家庭背景:三口之家

  设计风格:新中式


【客厅装修效果图】


【餐厅装修效果图】


【主卧装修效果图】


【次卧装修效果图】


【卫生间装修效果图】


  案例说明:

  男主人是企业高管,为人谦逊、严谨,来自紫砂的故乡——宜兴,所以对于紫砂有特殊的情怀,在风格上更倾向于中式,而女主人对于沉闷的中式却很抗拒,设计师为了两者的兼容性将丰富的色彩贯穿于整个空间里,让符合当代生活的新中式更加活泼灵动。

  我们的需求:需要有一个小主人围棋对弈的区域,独立喝茶的空间,摆件的展示区,男主人偶尔在家办公的场所。

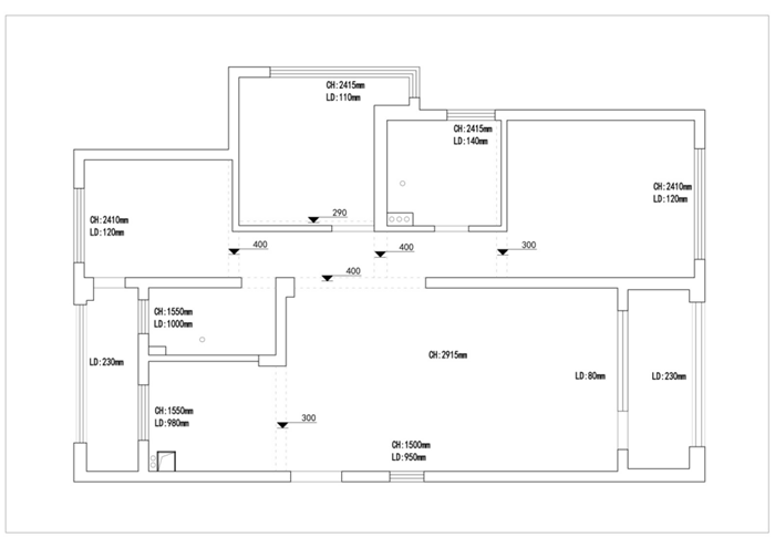
  改造前细节


  优点:采光通风好,南北通透,客餐厅空间大

  缺点:主卧储物功能一般,外部储藏空间欠缺

  改造后细节:


  案例特点:新中式混搭

  餐厅区域独立开辟出一块罗汉床位置,融合了围棋对弈、摆件展示、喝茶区的多功能空间,也使得整个公共区域更添一抹文化的氛围和质感,卧室里大面积蓝色的运用使整个空间更加静谧安然,有助于忙碌一天的主人更好的入眠,此案活泼大胆的用色体现了设计师对于色彩的把握,让我们体验到了不一样的新中式。


上一条:100平房子装修预算有限的装修 下一条: 豪宅设计的重新定义|下沉式设计

免费报价 装修预约

17年专注居家生活品质
30000+别墅大宅设计施工作品
90%+的客户把紫苹果推荐给自己亲友

紫苹果官网:zpg.com.cn

咨询电话:400-0505-907

无锡别墅装修

扫一扫手机浏览

无锡别墅装修

扫一扫关注我们

紫苹果声明:

“紫苹果”是经过商标局注册认证,属于紫苹果装饰集团独有品牌。紫苹果装饰目前只在上海、无锡、合肥、成都、南宁、贵阳、昆明、曲靖、大理等城市开设分公司; 其余地区相似紫苹果公司不属于紫苹果装饰集团。咨询热线:400-0505-907

紫苹果的优势:连续多年入选装修公司排名前十强、20年别墅家装经验,大品牌有保障,致力为精英人士和高端客户提供无锡别墅装修、装修设计、软装设计等私属定制服务。

Copyright 2020 www.wxzpg.com All Rights Reserved. 苏ICP备18037275号-2 苏公网安苏公网安备32021302002167 上海紫苹果装饰有限公司无锡第一分公司版权所有

紫苹果国际设计-品质赢得口碑

  • 网警110
  • 网络社会征信网
  • 可信网站
  • 诚信网站

×

提交成功
感谢您关注紫苹果,我们将会在一个工作日内与您联系!
我知道了