2017年新中式装修效果图赏析——旧房改造
设计师:朱大铭
所属公司:无锡紫苹果装饰
职 位:主任设计师
设计理念:低调、包容、谦让、丰富、随和
房 型:三室两厅
面 积:169平米
家庭背景:主人五行属土
设计风格:新中式
【新中式餐厅】
【新中式玄关】
案例说明:
主人对于风水颇有讲究,自身五行属土,所以我们在设计时家居整体色彩上以大地色系为主。梨花木色的门配以局部的原木色的墙饰将低调、儒雅慢慢呈现。加上富有细节的条案、餐椅将新中式的文化气息得到升华。整体有如一幅山水画,值得人慢慢品味,经久不衰。又如一碗茶,一口清淡,再品醇厚,齿颊留香。
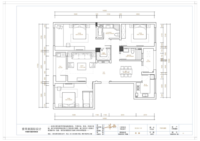
我们的需求:对于主卧需要有一个大的衣帽间,在不改变整体使用功能方面,向原客厅借用了部分空间,不仅让入户处有了玄关背景,改善了一入门就一览无余没有私密的缺点,还让沙发有三面环墙的包容感,让身处其中人更有安全感,可谓一举三得。
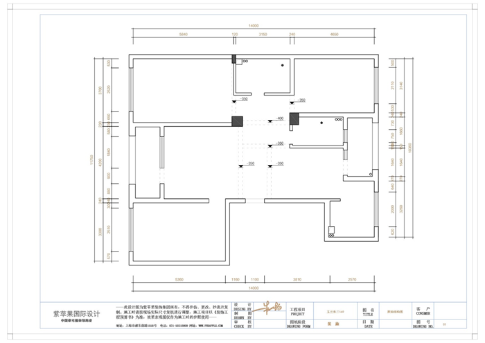
改造前细节:

优点:采光通风好,南北通透,客餐厅空间大,厨房空间较大。
缺点:主卧储物功能一般,没有储物空间,需做改动增加空间功能性。
改造后细节:

案例特点:
客餐厅:紫色的沙发软饰与沙发背景墙上的挂画相呼应,奶油绿的沙发淡化了整体中式的庄重,显得空间更轻盈、灵动,并与玄关处条案上的绿色水景盆相呼应点题,餐厅采用6人对坐的餐桌,增强了使用性,点缀了一幅简洁的4帧画,让餐厅空间得以延伸,由此拉开生活的序曲。
【新中式客厅】
最新文章
紫苹果声明:
Copyright 2020 www.wxzpg.com All Rights Reserved. 苏ICP备18037275号-2
苏公网安备32021302002167 上海紫苹果装饰有限公司无锡第一分公司版权所有
紫苹果国际设计-品质赢得口碑