设计师:朱大铭
职位:主任设计师
设计理念:舒适、典雅、简单、大方
房型:两室两厅——三室两厅
面积:93.42平米
家庭背景:新婚夫妇
设计风格:现代简约
案例说明:
此案是一对新婚夫妇,面对以后要生宝宝和接下来老人过来照顾家庭的需要,希望能有三个房间,并将保留其他的所有功能,设计师巧妙的借用厨房的部分空间做出一个多功能室,舒适的同时让空间极尽利用,在客餐厅的色彩上采用温暖、大方的米色使空间更敞亮。
我们的需求:对空间及功能要求较多,空间要大方宽敞明亮,即使空间不大也要有大宅的通透感。
改造前细节:(原始结构图如下)

优点:采光通风好,南北通透,厨房空间较大。
缺点:主卧储物功能一般,外部储藏空间欠缺,动静区分不明确,需做改动增加空间功能性。
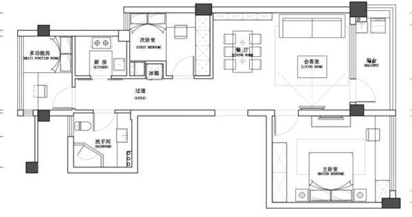
改造后细节:(改造后平面布置图如下)

案例特点:混搭简约
客餐厅:客厅的空间较小,为了使整体感更强且空间上更宽阔,所以选择三人座。在甲方要求有三个卧室的需要,本案设计师巧妙运用北阳台及部分厨房空间打造出一个工功能室,使该小户型完美的蜕变成三室两厅又满足众多需求的一个超高性价比的一个户型,软装的搭配体现出简单、淡雅、明媚的气息,让人感觉分外舒适。
【客厅】

【卧室】

公司官网:http://wxzpg.com
Tel:400-8816-360
13年15城
2000+豪华整装团队
30000+大宅别墅客户青睐
超90%的客户把紫苹果推荐给自己亲友
客户满意度全行业最高
预约装修
紫苹果声明:
Copyright 2020 www.wxzpg.com All Rights Reserved. 苏ICP备18037275号-2
苏公网安备32021302002167 上海紫苹果装饰有限公司无锡第一分公司版权所有
紫苹果国际设计-品质赢得口碑