设计师:徐进文
设计理念:舒适、生态、文化、艺术。
房型:四房两厅一厨两卫
楼盘:玉兰花园
面积:210平方
家庭背景:五口之家
设计风格:简欧
案例说明:
本案为简欧式风格主要采用白色、淡色为主,以淡色的色调对比跳跃的沙发靠垫颜色。家具主要特色是强调力度、变化和动感,沙发华丽的布面与精致的雕刻相互配合,把高贵的造型与地面的舖饰溶为一体。墙面的造型设计,包括餐厅的墙面和卧室的墙面,既要突出凹凸感,又要有优美的弧线,两种造型材质相映成趣,使得空间“风情万种”!
业主的需求:对功能要求比较全(独立书房、衣帽间,储藏室等),且在满足功能的前提下,首先通过对整体空间的局部改造,是整体布局更趋合理化;浅色调为主,富有家的温馨。
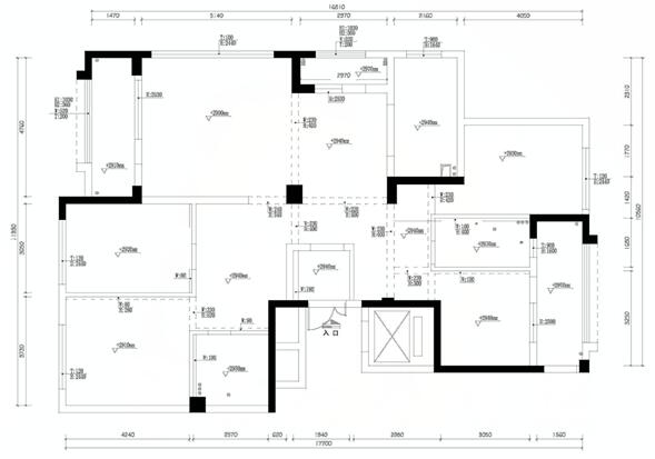
改造前细节:(原始结构图见附图)

优点:采光很好,南北通透,具备基本功能空间。
缺点:客餐厅比重不合理,缺乏固定储藏空间,户型格局的规划有待完善。
改造后细节:(改造后平面布置图见附图)

为日常居住,首先要考虑到日常生活的功能,不能太艺术化、太乡村化,应多一些实用性功能。而休闲性质的,则可以相对多元化一点,可以营造一种与日常居家不同的感觉。居住型风格可以是典雅一些、现代一些甚至带些小资情调,而休闲型则可以粗犷些、自然些、乡村些甚至带些原生态的味道。



公司官网:http://wxzpg.com
Tel:400-8816-360
13年15城
2000+豪华整装团队
30000+大宅别墅客户青睐
超90%的客户把紫苹果推荐给自己亲友
客户满意度全行业最高
预约装修
紫苹果声明:
Copyright 2020 www.wxzpg.com All Rights Reserved. 苏ICP备18037275号-2
苏公网安备32021302002167 上海紫苹果装饰有限公司无锡第一分公司版权所有
紫苹果国际设计-品质赢得口碑