项 目 介 绍

项目名称:金桂尚苑
建筑面积:176㎡
设计风格:欧式
全包:80万
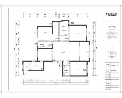
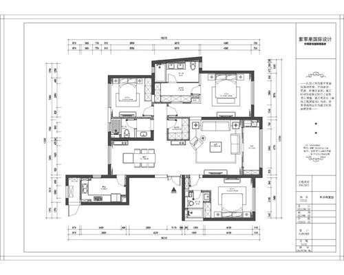
平 面 图 展 示

原始平面图

平面布置图
效 果 图 展 示
门厅
本案中,现代古典的欧式元素被纳入设计中,无论是欧式的护墙,还是顶梁的简单的金属走边,抑或是时尚的家具配置,各种繁复的印象被抹去,但又保留了传统的装饰元素,体现出一种利落.简约症状.透着一股自然,淡雅的韵味.
客厅
本案最大的亮点就运用了大量的古典线板来定义风格的取向,线板上纵横的利落线条给空间形塑出强烈的层次感,许以一种现代的气息,其中的纹理以及雕饰,又传递出一种古典美,古典.别致.
餐厅
另外,无论是客厅,餐厅还是卧室,地面铺设的设计其纹理清晰,给人以自然,淳朴之感.
卧室
同时,天然的材质低碳环保,营造了健康的家居氛围,复合现代人的需求.

主任设计师:张 星 虎
工作年限:8年
设计理念
以人为本,用心营造灵性的空间,用最少的语言表达最深厚的理念
擅长风格
现代简约、美式、欧式
代表作品
蠡湖尚郡别墅、太湖国际凯旋门、九里香醍别墅、东方丽晶别墅、东氿一号别墅、
龙湖紫云台蠡湖一号、玉兰花园、山水湖滨、天元世家、西水东、苏州湖墅金典别墅、
融创熙园、亚美利加别墅、华府庄园...
预约装修
紫苹果声明:
Copyright 2020 www.wxzpg.com All Rights Reserved. 苏ICP备18037275号-2
苏公网安备32021302002167 上海紫苹果装饰有限公司无锡第一分公司版权所有
紫苹果国际设计-品质赢得口碑