项 目 介 绍
设计师:张星虎
楼盘名称:金桂尚苑
面积:115㎡
风格:现代风格
设计定位:家是心灵的港湾
基础预算:8.5万
设计的主要着力点
简洁和实用是现代简约风格的两个基本特点。简约装修是比较实用的装修方案,它不仅可以缓解现代生活所带来的生活压力,用较少的钱获得自己满意的装修方案。
此外,现代人对家居节能环保要求日益提高,要绿色家居,低碳生活。另外简约风格方便日后的再装修。
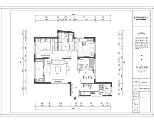
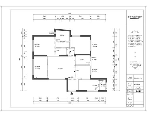
平面图展示
效果图展示
客厅
随着人们在旅游中感受到简约的魅力,“简约但并不简单的装饰风格”。
当疲惫的身心对家的依恋越发强烈,人们想要的是轻松、自由的环境,“现代简约风格”自然就成为家居设计的一种风尚
餐厅
注重大小色块间的组合,地域性的后期配饰融入设计风格之中。
简约,不简单走进现代简约风格家居
卧室
现代人面临着城市的喧嚣和污染,激烈的竞争压力,还有忙碌的工作和紧张的生活。
因而,更加向往清新自然

主任设计师:张星虎
工作年限:8年
设计理念
以人为本,用心营造灵性的空间,用最少的语言表达最深厚的理念
擅长风格
现代简约、美式、欧式
代表作品
蠡湖尚郡别墅、太湖国际凯旋门、九里香醍别墅、东方丽晶别墅、东氿一号别墅、
龙湖紫云台蠡湖一号、玉兰花园、山水湖滨、天元世家、西水东、
苏州湖墅金典别墅、融创熙园、亚美利加别墅、华府庄园...
预约装修
紫苹果声明:
Copyright 2020 www.wxzpg.com All Rights Reserved. 苏ICP备18037275号-2
苏公网安备32021302002167 上海紫苹果装饰有限公司无锡第一分公司版权所有
紫苹果国际设计-品质赢得口碑