项 目 介 绍
澳海胥江湾是澳海地产,苏州项目位于苏州吴中区胥口镇核心,东欣路西侧,腾胥路以北;毗邻胥口连接太湖旅游度假区和苏州城区的东西向主干道---孙武路。进则享胥口镇区核心商业及木渎商圈繁华,退则可近观千年胥江旖旎景观长廊;从景观资源上,南依万顷太湖,北靠穹隆香山,东接天平灵岩。
项目占地面积约11万平米,总建面积约18万平米,其中地上部分约13万平米。整个社区建筑设计坚持美国赖特草原住宅的讲究以及对环境的尊重,不但具有美国文化的精神,更是一种现代住宅的典范。产品规划以多层电梯洋房、小高层与MINI墅为主。

地理位置:苏州-虎丘区 澳海胥江湾
地理环境:吴中-胥口 东新路西侧
休闲环境:中影国际影视城,健身、游泳、桑拿、上岛咖啡等
教育环境:胥口实验小学-附属幼儿园、胥口中心小学附属幼儿园等
设计师:蒋志强
面积:180
户型:五室两厅一厨三卫
平 面 结 构 图
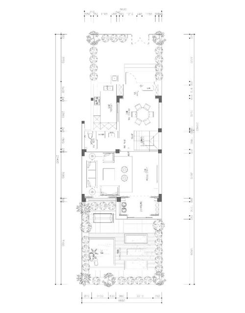
原始结构图
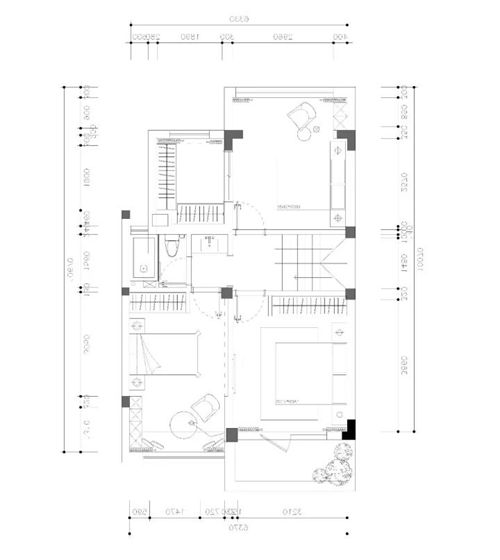
一层平面布置图
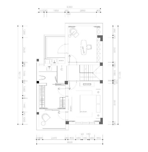
二层平面布置图
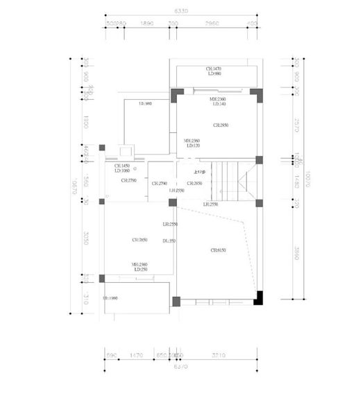
三层平面布置图
方案一:法式轻奢
案例说明:
本案为法式轻奢,在设计上讲求心灵的自然回归感,给人一种扑面而来的浓郁气息。开放式的空间结构、随处可见的花卉和绿色植物、雕刻精细的家具……所有的一切从整体上营造出一种田园之气。不论是床头台灯图案中娇艳的花朵,抑或是窗前的一把微微晃动的摇椅,在任何一个角落,都能体会到主人悠然自得的生活和阳光般明媚的心情。
方案二:现代简约
案例说明:
以简洁的表现形式来满足人们对空间环境那种感性的、本能的和理性的需求,这就是现代简约风格。现代简约风格强调少即是多,舍弃不必要的装饰元素,追求时尚和现代的简洁造型、愉悦色彩。与传统风格相比,现代简约用最直白的装饰语言体现空间和家具营造的氛围,进而赋予空间个性和宁静。
方案二:新中式
案例说明:
新中式风格非常讲究空间的层次感,在需要隔绝视线的地方,则使用中式的屏风或窗棂、中式木门、工艺隔断、简约化的中式"博古架",通过这种新的分隔方式,单元式住宅就展现出中式家居的层次之美。再以一些简约的造型为基础,添加了中式元素,使整体空间感觉更加丰富,大而不空、厚而不重,有格调又不显压抑。

主任设计师:蒋志强
工作年限:8年
设计理念
努力的价值,是成为美好的一部分;设计的价值,是发掘出这些美好
擅长风格
现代简约、美式、新中式、欧式
代表作品
碧桂园、印象剑桥、南丰御园、九龙仓玺园、国联恒园、龙湖原墅、
玉兰花园、栖霞栖园、雅居乐、金域蓝湾、紫金伴山...
预约装修
紫苹果声明:
Copyright 2020 www.wxzpg.com All Rights Reserved. 苏ICP备18037275号-2
苏公网安备32021302002167 上海紫苹果装饰有限公司无锡第一分公司版权所有
紫苹果国际设计-品质赢得口碑