项 目 介 绍

项目名称:玉兰花园
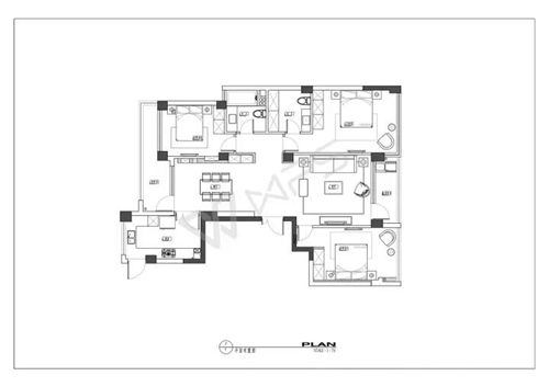
项目面积:142平
设计风格:现代
设计师:邹迎
平 面 图 展 示

效 果 图 展 示
客餐厅
客餐厅之间原有的墙体全部打通,形成宽敞的空间区域
客厅
简单的线条就能勾勒出一个纯净的家居世界,抛开一切冗余的元素,白色纯净
餐厅
融入自然的木色,以及些许跳跃的点缀,自由纯粹的现代设计中多了几分温暖。
卧室
延续客餐厅的设计手法,打造简单质感的居住体验

主任设计师:邹迎
工作年限:8年
设计理念
回归生活的本质状态,追求简单真实,
食物我们要无添加剂的,设计我们也要最本真的。
擅长风格
现代简约、美式、新中式、欧式
预约装修
紫苹果声明:
Copyright 2020 www.wxzpg.com All Rights Reserved. 苏ICP备18037275号-2
苏公网安备32021302002167 上海紫苹果装饰有限公司无锡第一分公司版权所有
紫苹果国际设计-品质赢得口碑