项目介绍
项目名称:东城一品
项目位置:锡沪路与锡东大道交叉口北侧
项目面积:240平
项目定位:现代混搭
项目类型:顶复
平面图展示

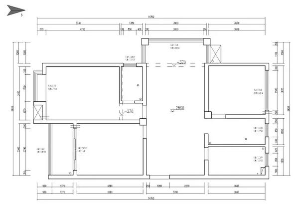
原始结构图

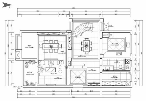
平面布置图

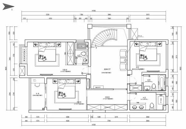
平面布置图
户型优缺点
此户型为上下2层一样的户型
房子在改造之前每个空间太碎,动线凌乱
客餐厅面积过小
厨房面积小
没有独立储物空间
客户需求情况
本案是业主给女儿做婚房使用,要准备2-3房
女主比较喜欢简洁大方,男主又喜欢古典的奢华,经过商讨以后风格定位为现代混搭
效果图赏析
一楼客餐厅
一楼厨房
一楼客厅
一楼前厅
一楼休息室
二楼过道
二楼卧室

设计师:陈龙飞
擅长风格:现代,美式,欧式等
设计理念:合理使用空间以小博大画龙点睛创造美味家居生活!
"我们应站在客户的角度,认真想想他需要什么、他的生活方式是什么,作为一个设计者应该怎么去提高他的生活品质。
你的专业知识和经验能支撑你的技术层面,你的交流和捕捉能力决定了你和客户的交流状态,把客户当做恋人,他的需求,你要主动的去体会。"
预约装修
紫苹果声明:
Copyright 2020 www.wxzpg.com All Rights Reserved. 苏ICP备18037275号-2
苏公网安备32021302002167 上海紫苹果装饰有限公司无锡第一分公司版权所有
紫苹果国际设计-品质赢得口碑