项目介绍

项目名称:融创熙园
面积:90平
风格:现代风格
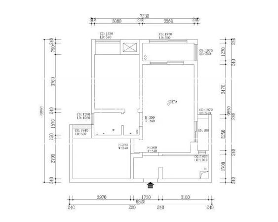
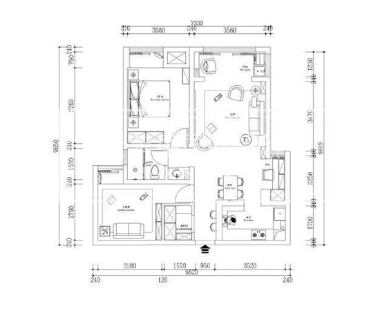
平面图展示

原始结构图

平面布置图

户型优缺点
■ 户型方正,南北通透,唯一缺点空间比较紧凑,采光好
客户需求
■ 男主人是IT行业,一家三口,长期定居上海,房子是用来度假休闲使用,整个房子空间要求以休闲学习,家人互动为主。
男主人经常日本出差,喜欢无印良品整体风格及色彩男主人喜欢在客厅可以和爱人及小孩互动,要求电视墙随时可以在墙面涂鸦及工作灵感来源。
色彩搭配

效果图赏析
设计师简介
姓名:潘镜先
工作年限:10年
毕业院校:广西艺术学院
资历荣誉:中国室内装饰协会
2008年度 优秀设计师奖
2010年度 软装设计优秀奖
2013年度 集团回头客年度奖
设计理念:设计没有终极,只有不断的变革
预约装修
紫苹果声明:
Copyright 2020 www.wxzpg.com All Rights Reserved. 苏ICP备18037275号-2
苏公网安备32021302002167 上海紫苹果装饰有限公司无锡第一分公司版权所有
紫苹果国际设计-品质赢得口碑