1.项目背景
项目名称:宜兴龙湖紫云台
项目位置:宜兴市东氿大道和龙潭路交叉口南800米
项目面积:355平
项目定位:新中式
项目类型:别墅
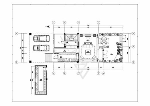
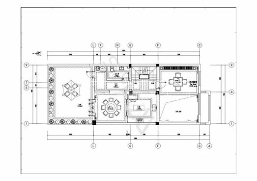
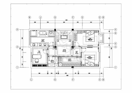
2.户型分析
户型优缺点:
1.入户门楼梯很不合理正处房子中间,让费空间而且整个房子不方正
2.男主人平时喜欢喝点酒,但是没有酒窖。在地下下挖酒窖把空间面积扩大
3.整个房子是依山而建,负一楼采光还是有点影响,根据客户家庭需求结构。把负一楼和一楼做了个挑空,解决了采光和通风
4.房子在改造之前每个空间太碎,动线凌乱
客户需求情况:
男主人是外科医生,平时喜欢看书。爱人是宜兴电视台记者,比较喜欢各国旅游,有个六岁可爱的女儿。
平时也经常出国旅游,同时男主人也是个很孝顺的人。买这个房子也是想跟父母互相之间有个照应。
客户对家的遐想:
男主人受家族影响还是比较喜欢中国文化,而爱人是个理想主义者,思想比较跳跃,喜欢冒险,又比较喜欢浪漫,对“伊斯兰教”情有独钟。
女儿平时练钢琴。想以后家能满足这些要求。




3.效果图赏析
客厅
静谧、大雅的生活空间往往摒弃矫揉造作之态,营造人与空间的和谐之美,置身其中方能静享精致之境,追求更高的精神格调。
餐厅
设计师运用现代造型与传统中式相结合的语言,总体布局采用了传统对称式的布局方式,沉重内敛。
主卧室
在装饰上不用较多的色彩,融入丰富的中式元素、传统家具、花格屏风等试图把东方传统的写意蕴含在空间设计中。
4.设计师资料
姓名:杨文武
资历荣誉:
CIDA 中国室内装饰协会颁发、资格证书:ZB:21311967
2007装饰传媒奖 – 年度样板空间大奖
2008年度 优秀设计师奖 - 杨文武
2009中国室内设计风云人物 - 杨文武
2010无锡设计装饰协会大赛-亚军
2012最具影响力设计师大奖 - 杨文武
2013年CIID高级会员
2013华东地区众泰4S店案例设计-杨文武
2014年无锡民众医院案例设计-杨文武
设计说明:
艺术品味源自生活的感悟,作为一个室内设计师,每次带着新的使命去进行创作,创新是一种必然的压力,面对这种压力时,最痛苦的莫过于不断的对自己方案进行否定,将在自己的生活中去寻找创作的灵感。
公司官网:http://wxzpg.com
Tel:400-8816-360
14年15城
2000+豪华整装团队
30000+大宅别墅客户青睐
超90%的客户把紫苹果推荐给自己亲友
客户满意度全行业最高
预约装修
紫苹果声明:
Copyright 2020 www.wxzpg.com All Rights Reserved. 苏ICP备18037275号-2
苏公网安备32021302002167 上海紫苹果装饰有限公司无锡第一分公司版权所有
紫苹果国际设计-品质赢得口碑