
设 计 说 明
户型优缺点:
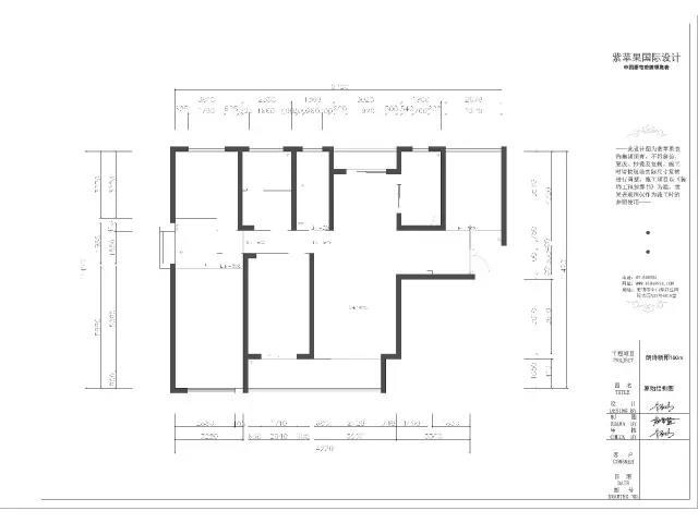
户型整体而言空间较为规整,南北通透保证了采光和通风。但是房屋承重墙较多,限定了每个空间的大小,不便于房屋的格局改变;且房屋拐角较多,面积难以利用。
客户需求:
屋主是都市白领但同时家庭成员较多,因此要求在保证生活质量的同时满足家人的生活需求。
设计师言:
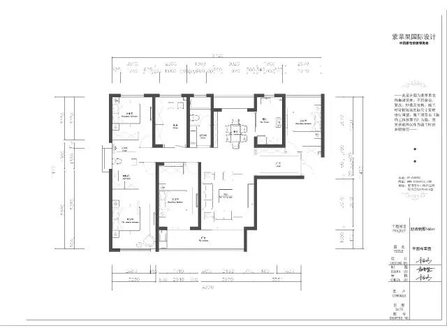
以「家庭」为设计概念,理解业主对于时尚和家庭的双重需求,利用小美的浪漫温馨加入一些生活小空间来打造生活之家。客餐厅与书房区域的开放性使得机能性极高,不至于让用餐、阅读、工作的家庭成员感觉压抑和狭小。阳台充满绿意的端景也营造出惬意的情调。随着家具摆设的不同,各个功能区都可以随意改造,为屋主的生活注入了更多变化的可能。
设 计 师 介 绍

朱家明
设计理念:高雅脱俗,力臻完美。
擅长风格:欧式,美式,现代,新中式
从业10年
紫苹果主任设计师
无锡装饰协会会员
中国注册室内设计师
中国室内CIDA装饰协会会员
中国流行色色彩协会会员
2012吴中室内设计大赛优秀奖
平 面 图 展 示




效 果 图 赏 析
餐厅
客厅
卧室
公司官网:http://wxzpg.com
Tel:400-8816-360
14年15城
2000+豪华整装团队
30000+大宅别墅客户青睐
超90%的客户把紫苹果推荐给自己亲友
客户满意度全行业最高
预约装修
紫苹果声明:
Copyright 2020 www.wxzpg.com All Rights Reserved. 苏ICP备18037275号-2
苏公网安备32021302002167 上海紫苹果装饰有限公司无锡第一分公司版权所有
紫苹果国际设计-品质赢得口碑