
姓名:刘营部
从业年限:9年
设计理念:办公空间实际上是集整体功能性为一体,并传递一种生活体验
擅长风格:新中式 美式 现代
学历:
毕业于南通航运学院
进修于上海同济建筑学院
荣获紫苹果装饰“集团设计大师”称号
荣誉 :
中国国际室内设计双年奖
国际传媒奖-现代装饰
学会奖-CIID
金外滩奖
设计感悟---设计的主要目的在于为人们的生存与活动创造一个理想的场所。因此使内部环境舒适与生活化,才能充分满足使用的功能需求。不能单纯因为追求形式或突出技术而影响或破坏使用功能,所以我认为“适用”必须是第一位的。但是设计的空间不只是具有实用的功能,还应该通过它的外在形式唤起使用者的审美感受,满足审美需要。功能与形式方面存在着一种互补关系,有时设计需要强调功能而放弃形式,有时则偏重形式而牺牲功能,但设计的本源必须是突出功能。
设计背景

项目名称:无锡 华润橡树湾
项目位置:惠山堰桥政和大道与锡澄路西南角
项目面积:240平
项目定位:传统美式
项目户型:四室一厅一厨四卫
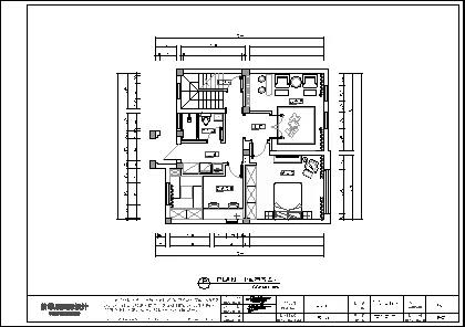
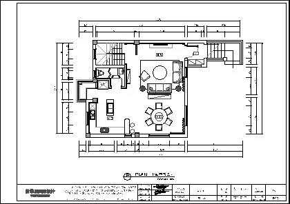
户型分析
户型的优缺点:
户型整体比较规整,拥有能较好的采光与通风性,但是厨房过小,一楼的使用空间比较琐碎,并不利于空间的分配使用。
客户需求:
业主一家是一个非常美满的大家庭,男主人沉稳缜密,对于装修需求是十分理性的考虑与追求;女主人热情好客,对于家有着各种美好的憧憬与期待,买这个别墅就是为了让一家人都生活在一起,老人相伴左右,子女承欢膝下,一家人的幸福生活将从这个别墅中展开…




平面布置图
效果图赏析
客厅
本案是根据业主的喜好,诞生的传统美式风格。依据业主的需求,把家以最现实的形式呈现出来
儿童房
使整个家既有男主人的沉稳内敛,又有女主人心思细腻的体现。
主卧
一个家到最后,一定是屋主的生活方式与精神面貌的体现。
主卧书房
家还是要回归根本,在自己家里,舒适自然是第一要务的。无论潮流怎么改变,你永远都有一个属于自己的最舒适的家…
预约装修
紫苹果声明:
Copyright 2020 www.wxzpg.com All Rights Reserved. 苏ICP备18037275号-2
苏公网安备32021302002167 上海紫苹果装饰有限公司无锡第一分公司版权所有
紫苹果国际设计-品质赢得口碑