项 目 背 景

地理位置:香樟园、环太湖公路、毗邻太湖
地理环境:百米高喷 太湖鼋头渚风景区 高端优质居住地、蠡湖中央公园
休闲环境:蠡湖中央公园、欧尚超市、大润发
服务环境:第五人民医院、蠡园中学

案 例 说 明
小区:蠡湖香樟园
房 型:四室两厅三卫大平层
面 积:220㎡
家庭背景:三口之家
设计风格:美式混搭

设计师:朱大铭
工作年限:10年
职 位:主任设计师
设计理念:
从生活出发, 将固定建筑之美注入生命,将材料赋予情感,将空间美学贯穿于完善的功能布局之间,将传统的元素赋予现代的设计中,让人既体会到现代设计的科技性,又体会到传统的韵味。
代表作品:
鹅湖独栋别墅 华府庄园别墅 东南坊独栋别墅 首创悦府 万科魅力 东方王榭等。
设计说明:
本案是精装房,家里常住人口2人,女儿到了适婚年龄,要考虑婴儿床和回来居住的空间。本户型最大的价值在于客厅的落地窗正对蠡湖,湖景幽美。客户工作比较忙,最需要的恰恰是一份宁静舒适,因此一眼就看上了这套房子。本案拆除了原有的千篇一律的呆板装饰,加入一点灵动,增添一份质感,在景色与光线之间找到那点平衡,回归到客户最初的那份感动。
客户需求:
对每个单独功能区进行优化,对客餐厅厨房空调系统重新设计安排。在尽量少改动的情况下,重点调整了厨房、多功能房、客餐厅、女儿房的格局和装饰,使整体布局更趋合理化;浅色调为主,打造一个闲适空间。
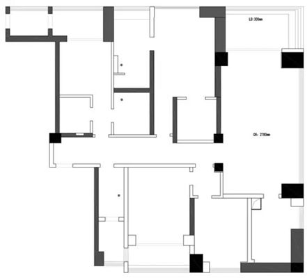
户 型 分 析
优点:客厅落地窗正对蠡湖,采光很好,南北通透,空间规划明确,具备基本功能空间。
缺点:精装房缺乏对生活的深层次理解,客餐厅顶面造型呆板,空调安排不合理。厨房缺乏储藏空间和空调,无冰箱位置和电器柜,户型格局的细节规划有待完善。



效 果 图 展 示
配色方案


原精装木质结构偏美式简约

在灯具和家具选择上面,设计师选用了简约美式的美克美家家具,营造无约束的休闲浪漫,打造自由自在,随意不羁的生活方式。

随性浪漫的同时又不失贵气和端庄。

设计师使用2017年流行色进行装点,宝石蓝、湖蓝、黄棕等高质感色彩点缀运用。

设计大胆而灵活,打造出一个闲适空间。
预约装修
紫苹果声明:
Copyright 2020 www.wxzpg.com All Rights Reserved. 苏ICP备18037275号-2
苏公网安备32021302002167 上海紫苹果装饰有限公司无锡第一分公司版权所有
紫苹果国际设计-品质赢得口碑