设计师:唐杰
所属公司:无锡紫苹果装饰有限公司
职 位:高级主任设计师
设计理念:舒适、简约、个性、精致。
房 型:平层
面 积:218㎡
家庭背景:五口之家
设计风格:新中式
案例说明:
在跟业主进行交流的时候,业主的家庭是五口之家,业主是跟父母一起住的,父母比较喜欢中国的传统文化,业主自身也是比较注重雅致的生活。所以就想到了新中式的风格,因为新中式风格体现出来的是浓郁的东方之美,加上家具方面添加中式元素,会使整体空间感觉更加丰富,大而不空、厚而不重,有格调又不显压抑。
我们的需求:对功能要求比较全(独立多功能室、衣帽间、休闲区等),且在满足功能的前提下,需要做出分隔的功能性空间,则采用“哑口”或简约化的“博古架”来区分;在需要隔绝视线的地方,则使用中式的屏风或窗棂。
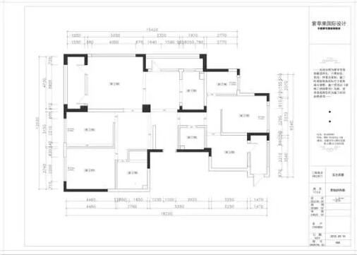
改造前细节:(原始结构图见附图)
优点:采光很好,南北通透,具备基本功能空间。
缺点:空间利用率不高,主卧室空间不符合整体配套,户型格局的规划有待完善。
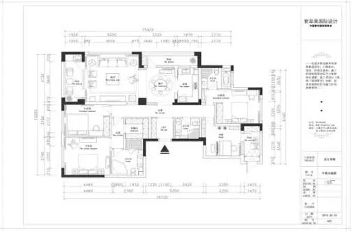
改造后细节:(改造后平面布置图见附图)
案例特点:新中式
1、空间布局:禅意空间讲求虚实变化,隔而不断。一个安静的空间往往会以东方式的禅意为底蕴,人居其中感觉通透舒畅,但太过直白的开放式空间又缺乏引人思考的韵味,会让涤荡人心的禅意无处存身,因而虚实变化是安静空间设计的一个重要理念。典型的中式空间讲究隔断,而这种隔断的目的并不在于把空间切断,而是一个过渡、一个提醒,常常隔而不断,让简单的空间有了纵深感和一些曲径通幽的禅意,还有墙面的留白、家具的虚功能和实体形的设计等,都是安静空间设计的精髓,也可以让空间有更大的弹性。
2、装饰空间:空间装饰多采用简洁硬朗的直线条。直线装饰在空间中的使用,不仅反映出现代人追求简单生活的居住要求,更迎合了中式家具追求内敛、质朴的设计风格,使“新中式”更加实用、更富现代感。
3、装饰色彩:新中式风格的家具多以深色为主,墙面色彩搭配:一是以苏州园林和京城民宅的黑、白、灰色为基调;二是在黑、白、灰基础上以皇家住宅的红、黄、蓝、绿等作为局部色彩。
4、配饰家具:新中式风格的家具可为古典家具,或现代家具与古典家具相结合。中国古典家具以明清家具为代表,在新中式风格家具配饰上多以线条简练的明式家具为主。
原始图:

平面布置图:

餐厅采用深色为主,然后餐桌完全是按照拥有传统气息的中国古典明清家具,然后采用线条简练的明清家具衬托了中式的氛围。
客厅是传统与现代居室风格的碰撞,设计师以现代的装饰手法和家具,结合古典中式的装饰元素,来呈现亦古亦今的空间氛围。中式风格的古色古香与现代风格的简单素雅自然衔接,使生活的实用性和对传统文化的追求同时得到了满足。影视墙的造型简洁现代,却在醒目位置饰以中式书法,这种绝妙的组合给人以强烈的视觉意志力,成为时尚与古典的柔媚结合。
卧室在色彩方面秉承了传统古典风格的典雅和华贵,但与之不同的是加入了很多现代元素,呈现着时尚的特征。在配饰的选择方面更为简洁,少了许多奢华的装饰,更加流畅地表达出传统文化中的精髓。
公司官网:http://wxzpg.com
Tel:400-8816-360
14年15城
2000+豪华整装团队
30000+大宅别墅客户青睐
超90%的客户把紫苹果推荐给自己亲友
客户满意度全行业最高
预约装修
紫苹果声明:
Copyright 2020 www.wxzpg.com All Rights Reserved. 苏ICP备18037275号-2
苏公网安备32021302002167 上海紫苹果装饰有限公司无锡第一分公司版权所有
紫苹果国际设计-品质赢得口碑