无锡别墅设计——路劲天御143平户型案例分析:

一、无锡别墅设计项目简介:
1、地理位置:路劲天御,滨湖区中南西路与蠡溪路交西南侧。
2、地理环境:路劲天御周边湖景资源丰富,所处位置环境不错。南面有蠡湖,西面有渔夫岛,还有百米高喷、鼋头渚、蠡湖中央公园等景区。
3、生活环境:路劲天御项目周边暂无生活配套,对居民生活不利,需要完善。
二、户型概括:
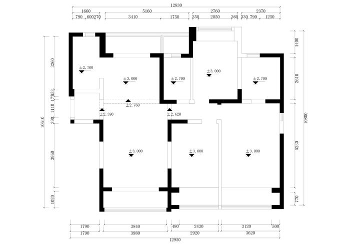
该户型属于路劲天御B户型,共143㎡,得房率约等于78%,赠送面积有飘窗和阳台的一半面积,其中双卧朝南,卫生间主次分明,该户型整体来看,布局方正,符合国人的传统需求,南北通透,通风和采光良好。

三、户型缺点:
1、厨房空间太小,无法满足业主生活需求。可操作性相对较弱。
2、入户门正对过道,由入户门进入后,视线可直接看到过道尽头的窗户,风水上叫做”直冲”,不易聚财,所以很多业主不喜欢这样的布局。
3、空间可改造性不大。
四、户型优点:
1、客厅开间约4.2M,空间开阔
2、主卧空间约3.8,每个卧室自带飘窗设计,增加舒适度
3、三开间朝南
4、双阳台设计,采光充足,通风顺畅,景观阳台和功能阳台分离,增加隐私性。
五、设计思路:
1、入户玄关:进门两侧可改为换鞋凳和鞋柜。更具有实用性、装饰性
2、死角处理:放置花艺和挂画(装饰画)。
3、过道尽头设置为主卧独立衣帽间。解决直冲的现象。
六、平面方案布置:

在平面规划中,与客餐厅相连的南北阳台提高了采光性,在生活方面提高舒适度,北阳台规划为生活阳台和设备阳台,由于主卧有很充足的面积,这样便可以规划出独立的主卧衣帽间,同时也解决了主卫的门正对主卧的床的尴尬问题。
七、平面方案缺点:
1、承重结构多而导致的空间可改造性不大
2、厨房空间相对较小,另外整个空间储藏功能相对较弱
3、入户门正对的过道略长。
八、平面方案优点:
1、L形厨房设计,提高空间利用度,可操作性强。
2、双卫生间设计,主客分离,保证主人的私密性。
3、全功能主卧,休闲阳台、独立衣帽间和卫生间。
4、客餐厅相连,对室内起到延伸的作用,增强舒适度。
预约装修
紫苹果声明:
Copyright 2020 www.wxzpg.com All Rights Reserved. 苏ICP备18037275号-2
苏公网安备32021302002167 上海紫苹果装饰有限公司无锡第一分公司版权所有
紫苹果国际设计-品质赢得口碑